Калькулятор дома +375297852003 phone Viber Telegram

ZZ230

Общая площадь дома: 207,8 м²
Категория: Мансардный
Количество спален: 4
Узнать цену

План 1-го этажа

План 1-го этажа
ЭКСПЛИКАЦИЯ ПЛАНА:
1. Тамбур: 3,7 м²
2. Гардеробная: 5,2 м²
3. Санитарный узел: 3,2 м²
4. Сауна: 5,0 м²
5. Коридор: 12,7 м²
6. Совмещённый санитарный узел: 7,5 м²
7. Кухня: 10,5 м²
8. Гостиная с обеденной зоной: 27,8 м²
9. Спальная: 12,3 м²
10. Спальная: 14,1 м²
11. Спальная: 16,0 м²

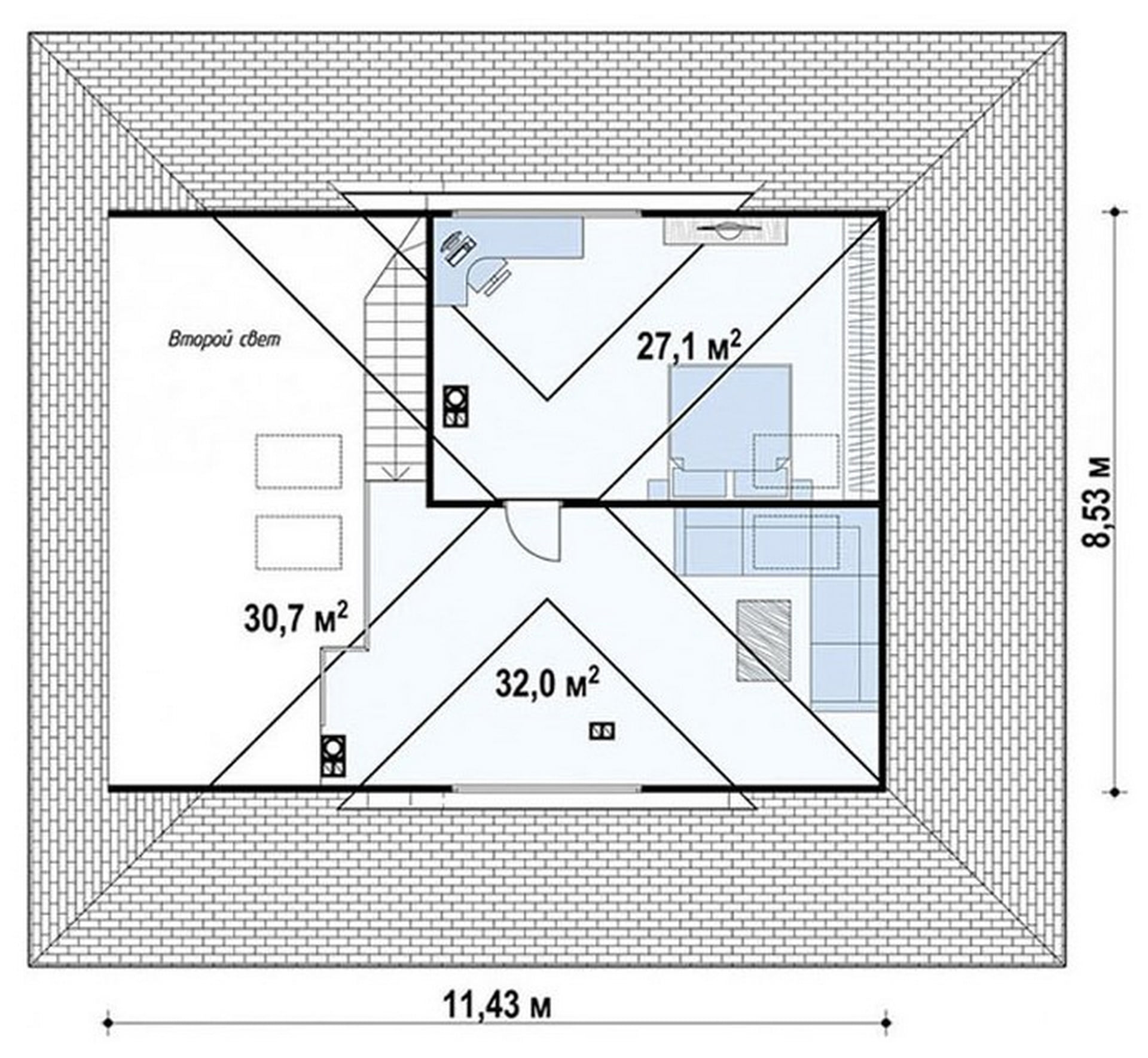
План 2-го этажа

План 2-го этажа
ЭКСПЛИКАЦИЯ ПЛАНА:
1. Второй свет: 30,7 м²
2. Гостиная: 32,0 м²
3. Спальная: 27,1 м²