Калькулятор дома
+375297852003
Главная
Проекты
Наши Работы
Услуги
Комплектация дома
Контакты
Z493
Общая площадь дома:
224,5 м²
Категория:
Мансардный
Количество спален:
5
Узнать цену
План 1-го этажа
ЭКСПЛИКАЦИЯ ПЛАНА:
1. Тамбур:
4,6 м²
2. Санитарный узел:
2,9 м²
3. Коридор:
18,1 м²
5. Гостевая комната:
10,9 м²
6. Кухня:
8,7 м²
7. Кладовая:
2,2 м²
8. Котельная:
7,3 м²
8. Гостиная с обеденной зоной:
36,2 м²
9. Гараж:
41,1 м²
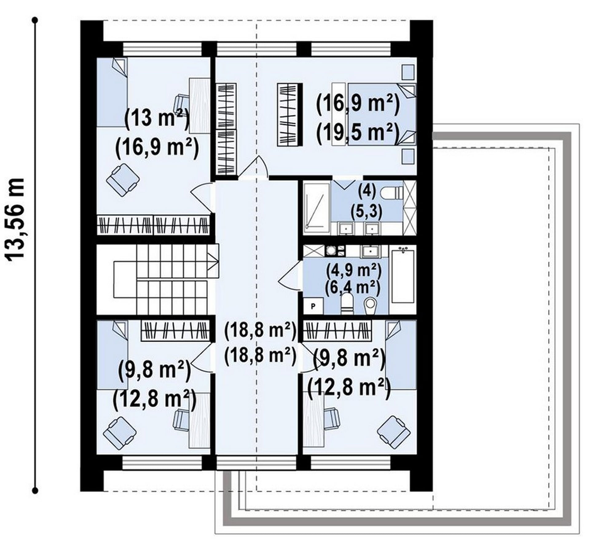
План 2-го этажа
ЭКСПЛИКАЦИЯ ПЛАНА:
1. Коридор:
18,8 м²
2. Ванная:
6,4 м²
3. Спальная:
19,5 м²
4. Санитарный узел:
5,3 м²
5. Спальная:
16,9 м²
6. Спальная:
12,8 м²
7. Спальная:
12,8 м²
Узнать цену
Имя
Телефон
Калькулятор дома
Выберите материал стен
Блочный
Каркасный
Выберите тип строения
1 этаж
2 этажа
A-frame
Баня
Гараж
Мансардные
Площадь дома м²
Площадь открытых террас м²
Площадь закрытых террас м²
Укажите площадь и тип дома
Ориентировочная стоимость
BYN
у.е.
Свяжитесь с нами:
+375297852003