Калькулятор дома
+375297852003
Главная
Проекты
Наши Работы
Услуги
Комплектация дома
Контакты
Z491
Общая площадь дома:
154,05 м²
Категория:
Мансардный
Количество спален:
4
Узнать цену
План 1-го этажа
ЭКСПЛИКАЦИЯ ПЛАНА:
1. Тамбур:
3,4 м²
2. Коридор:
6,1 м²
3. Санитарный узел:
1,8 м²
4. Котельная:
4,3 м²
5. Кухня:
10,7 м²
6. Гостиная:
34,2 м²
7. Гараж:
22,0 м²
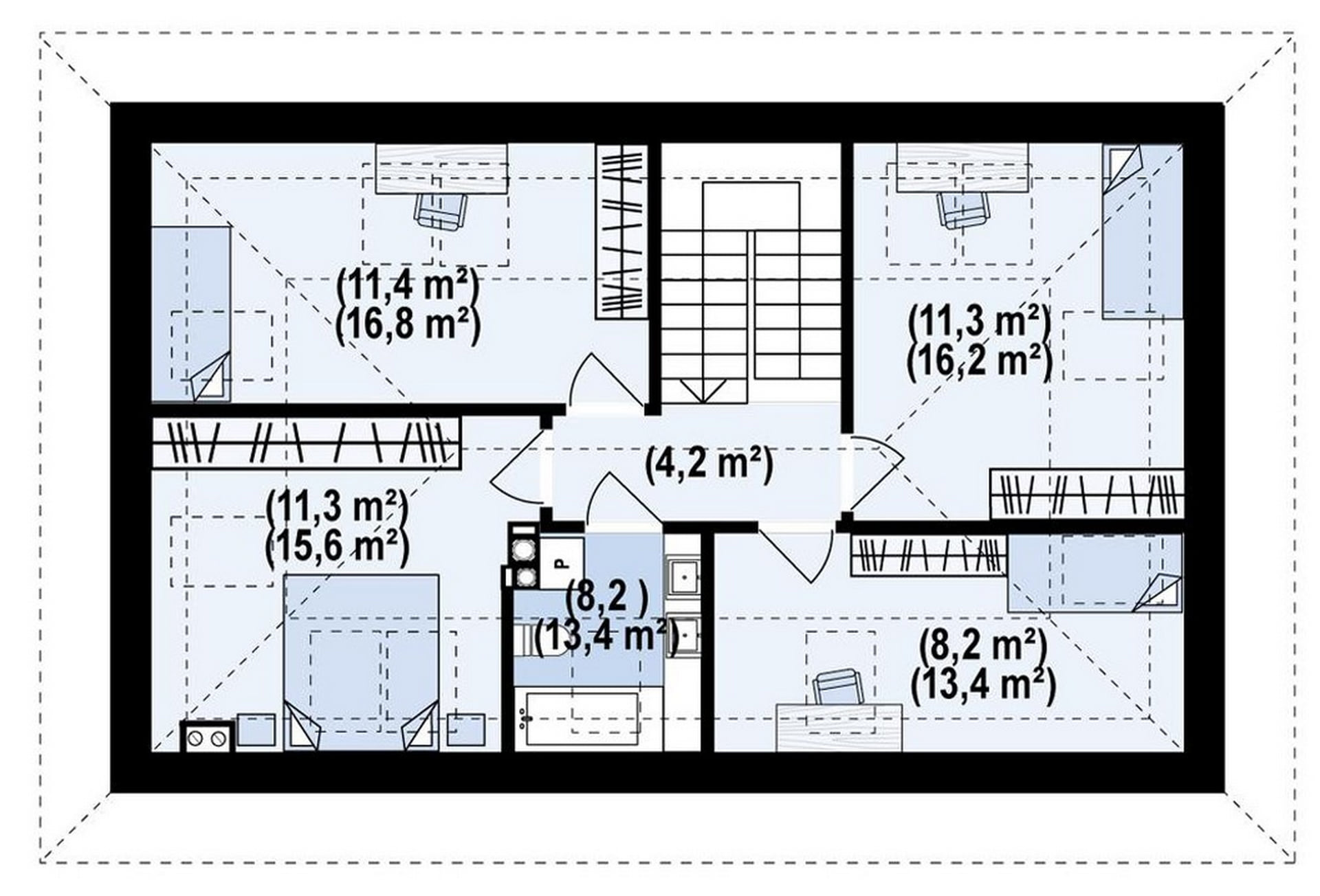
План 2-го этажа
ЭКСПЛИКАЦИЯ ПЛАНА:
1. Коридор:
4,2 м²
2. Совмещённый санитарный узел:
5,35 м²
3. Спальная:
13,4 м²
4. Спальная:
15,6 м²
5. Спальная:
16,2 м²
6. Спальная:
16,8 м²
Узнать цену
Имя
Телефон
Калькулятор дома
Выберите материал стен
Блочный
Каркасный
Выберите тип строения
1 этаж
2 этажа
A-frame
Баня
Гараж
Мансардные
Площадь дома м²
Площадь открытых террас м²
Площадь закрытых террас м²
Укажите площадь и тип дома
Ориентировочная стоимость
BYN
у.е.
Свяжитесь с нами:
+375297852003