Калькулятор дома
+375297852003
Главная
Проекты
Наши Работы
Услуги
Комплектация дома
Контакты
Z482
Общая площадь дома:
149,5 м²
Категория:
Мансардный
Количество спален:
3
Узнать цену
План 1-го этажа
ЭКСПЛИКАЦИЯ ПЛАНА:
1. Тамбур:
5,0 м²
2. Коридор:
9,1 м²
3. Санитарный узел:
1,9 м²
4. Котельная:
2,7 м²
5. Кухня:
8,7 м²
6. Гостиная:
34,1 м²
7. Кладовая:
2,0 м²
8. Гараж:
21,5 м²
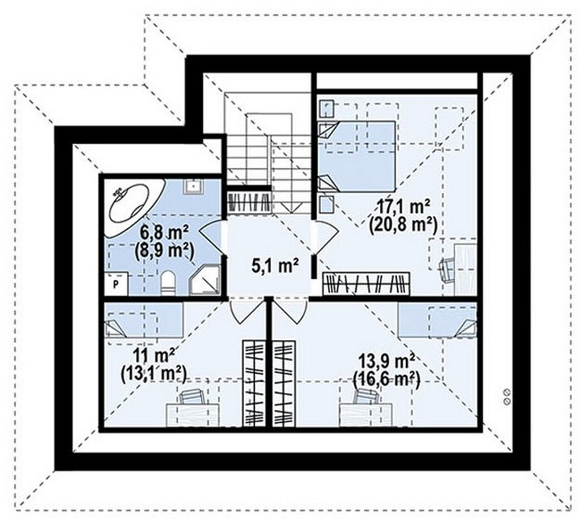
План 2-го этажа
ЭКСПЛИКАЦИЯ ПЛАНА:
1. Коридор:
5,1 м²
2. Совмещённый санитарный узел:
8,9 м²
3. Спальная:
20,8 м²
4. Спальная:
16,6 м²
5. Спальная:
13,1 м²
Узнать цену
Имя
Телефон
Калькулятор дома
Выберите материал стен
Блочный
Каркасный
Выберите тип строения
1 этаж
2 этажа
A-frame
Баня
Гараж
Мансардные
Площадь дома м²
Площадь открытых террас м²
Площадь закрытых террас м²
Укажите площадь и тип дома
Ориентировочная стоимость
BYN
у.е.
Свяжитесь с нами:
+375297852003