Калькулятор дома
+375297852003
Главная
Проекты
Наши Работы
Услуги
Комплектация дома
Контакты
Z478
Общая площадь дома:
95,2 м²
Категория:
Мансардный
Количество спален:
3
Узнать цену
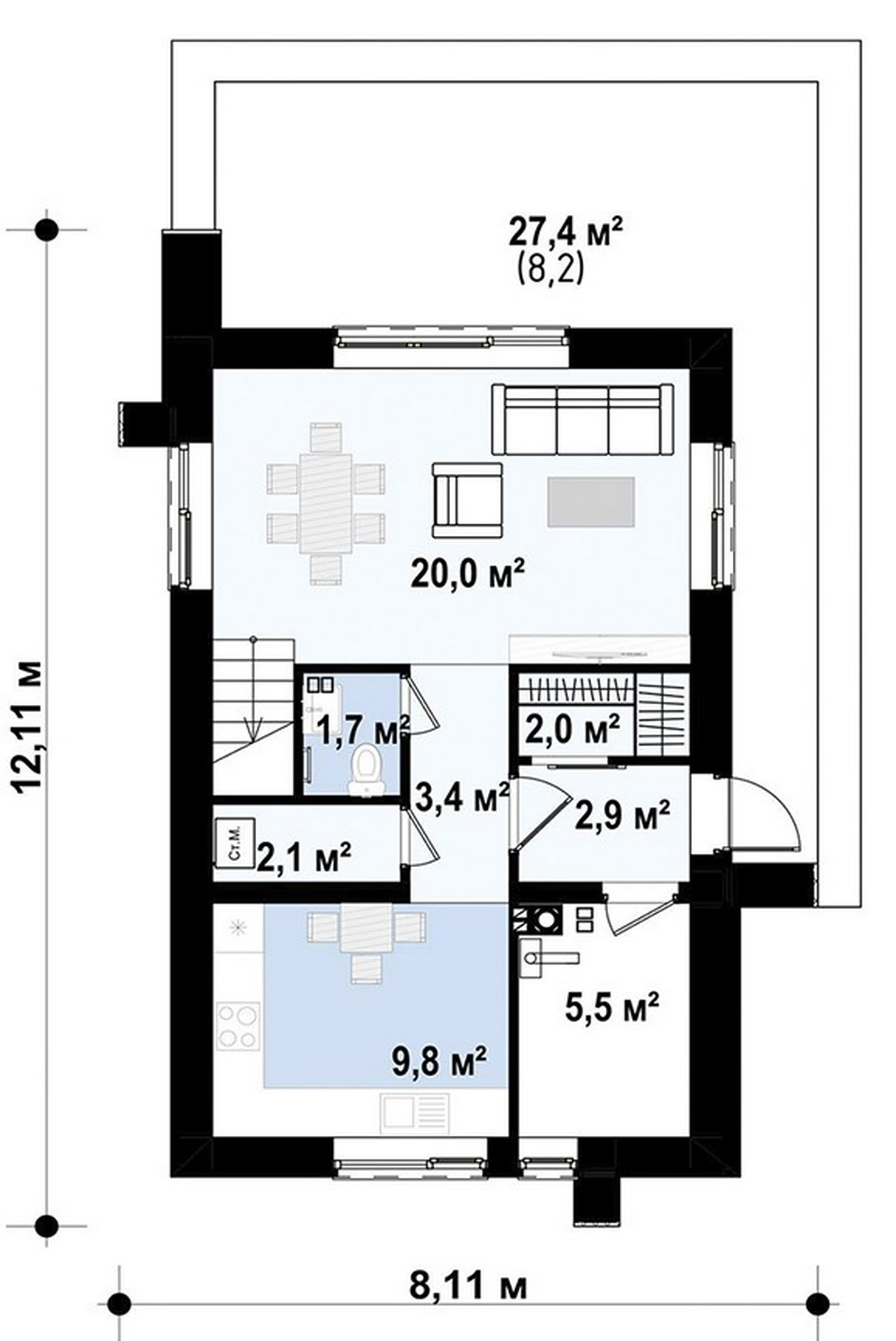
План первого этажа
ЭКСПЛИКАЦИЯ ПЛАНА:
1. Тамбур:
2,9 м²
2. Гардеробная:
2,0 м²
3. Санитарный узел:
1,7 м²
4. Коридор:
3,4 м²
5. Кладовая:
2,1 м²
6. Кухня:
9,8 м²
7. Котельная:
5,5 м²
8. Гостиная с обеденной зоной:
20,0 м²
План мансардного этажа
ЭКСПЛИКАЦИЯ ПЛАНА:
1. Коридор:
4,5 м²
2. Гардеробная:
1,6 м²
3. Ванная:
5,1 м²
4. Спальная:
10,4 м²
5. Спальная:
10,8 м²
6. Спальная:
15,4 м²
Узнать цену
Имя
Телефон
Калькулятор дома
Выберите материал стен
Блочный
Каркасный
Выберите тип строения
1 этаж
2 этажа
A-frame
Баня
Гараж
Мансардные
Площадь дома м²
Площадь открытых террас м²
Площадь закрытых террас м²
Укажите площадь и тип дома
Ориентировочная стоимость
BYN
у.е.
Свяжитесь с нами:
+375297852003