Калькулятор дома
+375297852003
Главная
Проекты
Наши Работы
Услуги
Комплектация дома
Контакты
Z465
Общая площадь дома:
225,09 м²
Категория:
Мансардный
Количество спален:
4
Узнать цену
План 1-го этажа
ЭКСПЛИКАЦИЯ ПЛАНА:
1. Тамбур:
3,2 м²
2. Котельная:
6,0 м²
3. Санитарный узел:
2,0 м²
4. Коридор:
7,9 м²
5. Спальная:
12,0 м²
6. Спальная:
13,0 м²
7. Гардеробная:
3,3 м²
8. Кухня:
10,2 м²
9. Кладовая:
2,4 м²
10. Гостиная с обеденной зоной:
35,0 м²
11. Ванная:
6,6 м²
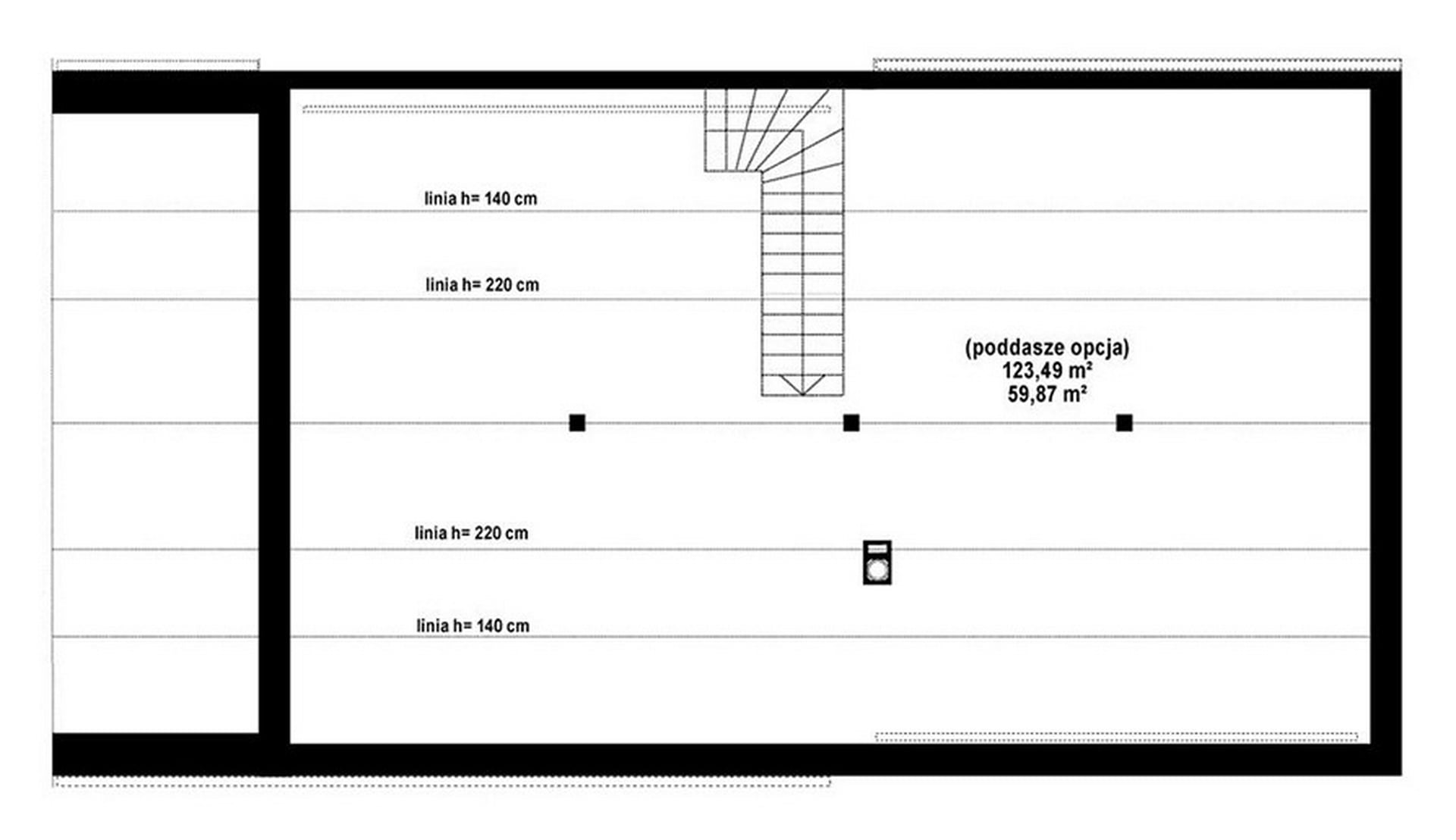
План 2-го этажа
ЭКСПЛИКАЦИЯ ПЛАНА:
1. Свободное планирование 123,49 м²
Узнать цену
Имя
Телефон
Калькулятор дома
Выберите материал стен
Блочный
Каркасный
Выберите тип строения
1 этаж
2 этажа
A-frame
Баня
Гараж
Мансардные
Площадь дома м²
Площадь открытых террас м²
Площадь закрытых террас м²
Укажите площадь и тип дома
Ориентировочная стоимость
BYN
у.е.
Свяжитесь с нами:
+375297852003