Калькулятор дома
+375297852003
Главная
Проекты
Наши Работы
Услуги
Комплектация дома
Контакты
Z440
Общая площадь дома:
104,5 м²
Категория:
Мансардный
Количество спален:
4
Узнать цену
План 1-го этажа
ЭКСПЛИКАЦИЯ ПЛАНА:
1. Тамбур:
4,2 м²
2. Котельная:
5,7 м²
3. Кабинет:
9,1 м²
4. Санитарный узел:
5,2 м²
5. Коридор:
12,1 м²
6. Кухня:
7,8 м²
7. Кладовая:
4,8 м²
8. Гостиная с обеденной зоной:
20,1 м²
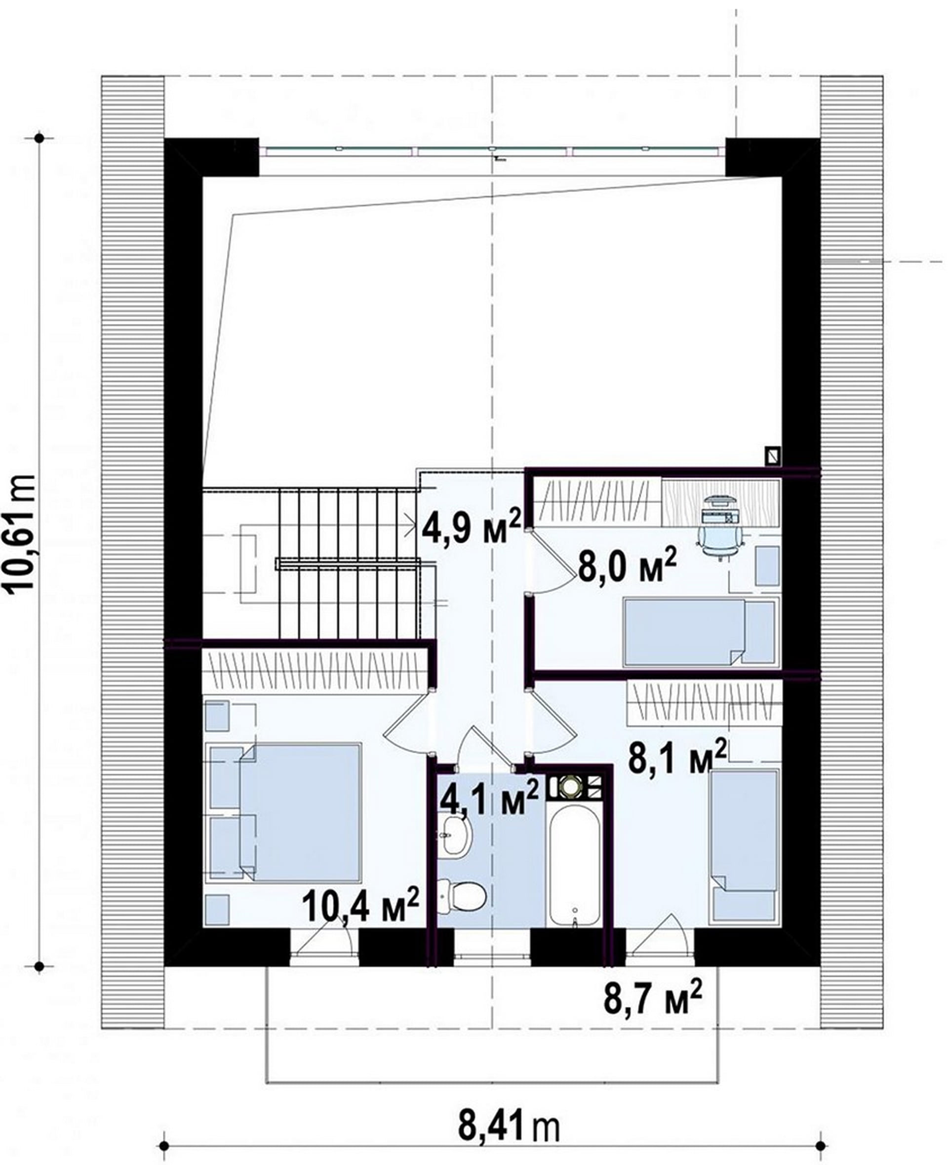
План 2-го этажа
ЭКСПЛИКАЦИЯ ПЛАНА:
1. Коридор:
4,9 м²
2. Совмещённый санитарный узел:
8,0 м²
3. Спальная:
8,1 м²
4. Спальная:
10,4 м²
5. Ванная:
4,1 м²
Узнать цену
Имя
Телефон
Калькулятор дома
Выберите материал стен
Блочный
Каркасный
Выберите тип строения
1 этаж
2 этажа
A-frame
Баня
Гараж
Мансардные
Площадь дома м²
Площадь открытых террас м²
Площадь закрытых террас м²
Укажите площадь и тип дома
Ориентировочная стоимость
BYN
у.е.
Свяжитесь с нами:
+375297852003