Калькулятор дома
+375297852003
Главная
Проекты
Наши Работы
Услуги
Комплектация дома
Контакты
Z439
Общая площадь дома:
167,1 м²
Категория:
Мансардный
Количество спален:
4
Узнать цену
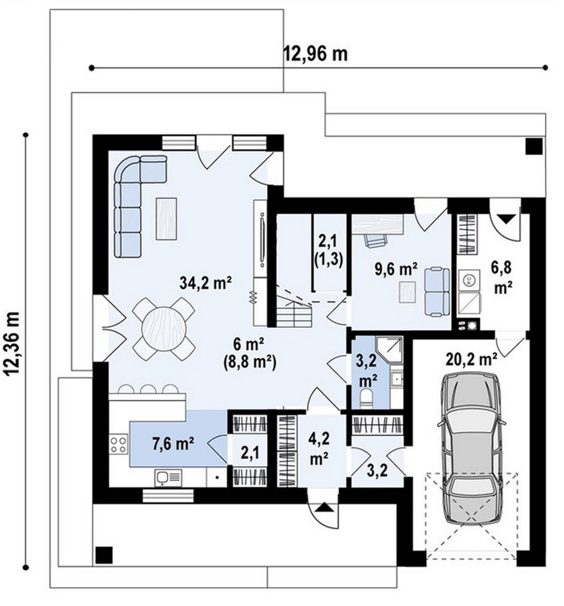
План 1-го этажа
ЭКСПЛИКАЦИЯ ПЛАНА:
1. Тамбур:
4,2 м²
2. Гардеробная:
3,2 м²
3. Гараж:
20,2 м²
4. Котельная:
6,8 м²
5. Коридор:
8,8 м²
6. Санитарный узел:
3,2 м²
7. Кухня:
7,6 м²
8. Кладовая:
2,1 м²
9. Кабинет:
9,6 м²
10. Гостиная с обеденной зоной:
34,2 м²
11. Кладовая:
2,1 м²
План 2-го этажа
ЭКСПЛИКАЦИЯ ПЛАНА:
1. Коридор:
5,8 м²
2. Совмещённый санитарный узел:
13,2 м²
3. Спальная:
11,2 м²
4. Гардеробная:
5,9 м²
5. Спальная:
14,4 м²
6. Спальная:
14,6 м²
Узнать цену
Имя
Телефон
Калькулятор дома
Выберите материал стен
Блочный
Каркасный
Выберите тип строения
1 этаж
2 этажа
A-frame
Баня
Гараж
Мансардные
Площадь дома м²
Площадь открытых террас м²
Площадь закрытых террас м²
Укажите площадь и тип дома
Ориентировочная стоимость
BYN
у.е.
Свяжитесь с нами:
+375297852003