Калькулятор дома
+375297852003
Главная
Проекты
Наши Работы
Услуги
Комплектация дома
Контакты
UTEN
Общая площадь дома:
58,72 м²
Категория:
Мансардный
Количество спален:
3
Узнать цену
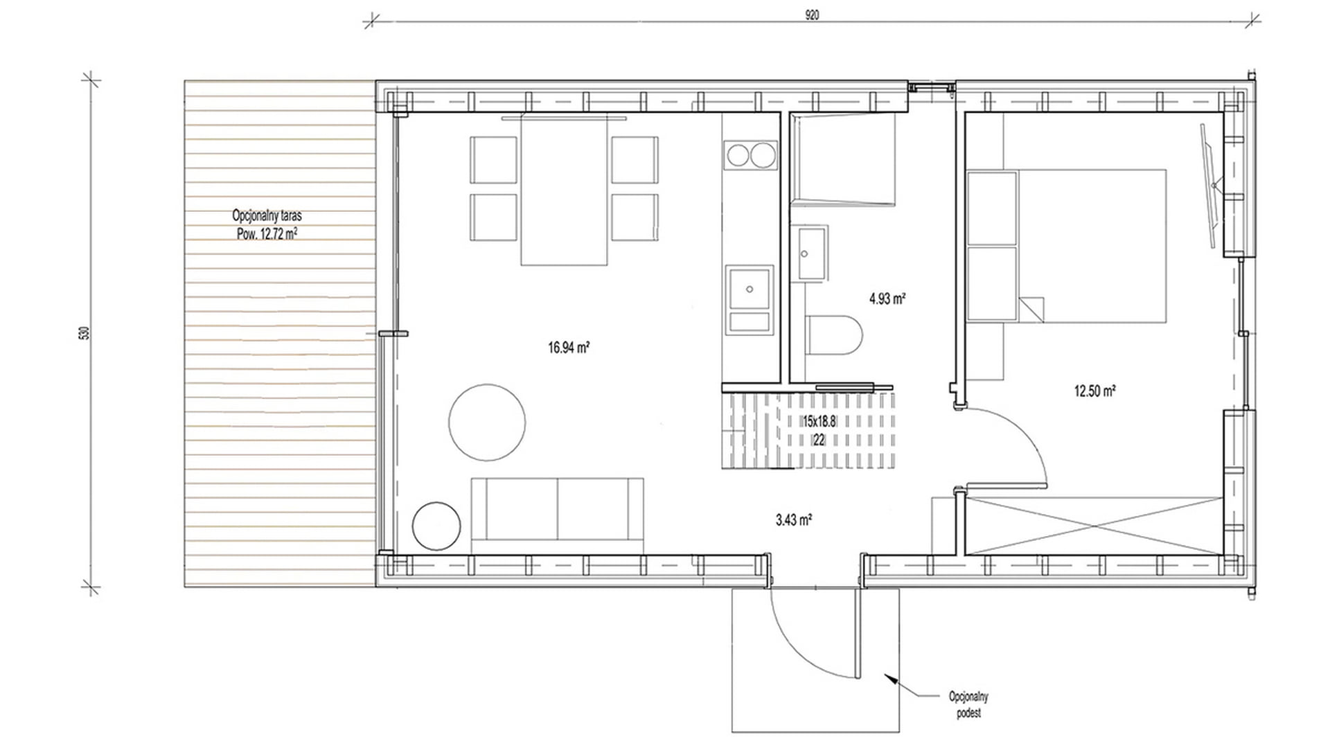
План первого этажа
ЭКСПЛИКАЦИЯ ПЛАНА:
1. Холл:
3,43 м²
2. Кухня, гостинная с обеденной зоной:
16,94 м²
3. Спальная:
12,5 м²
4. Санитарный узел:
4,93 м²
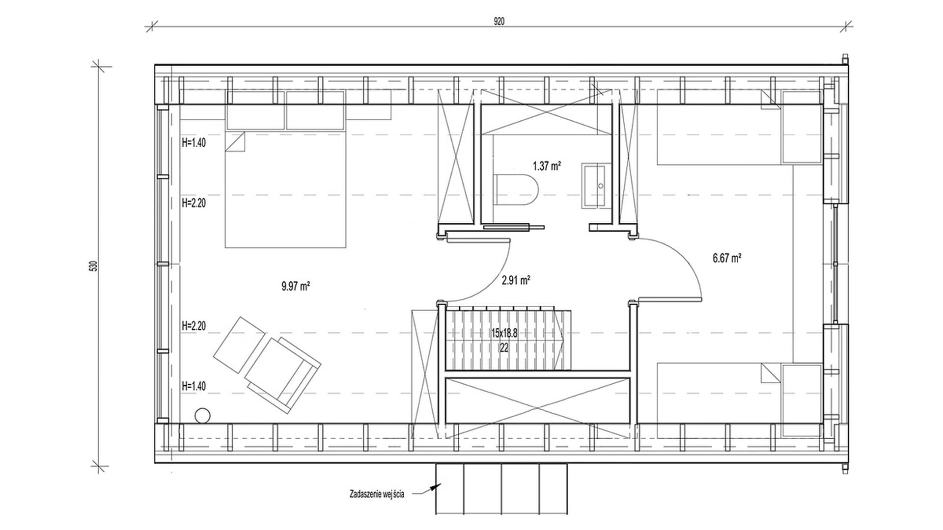
План мансардного этажа
ЭКСПЛИКАЦИЯ ПЛАНА:
1. Холл:
2,91 м²
2. Спальная:
9,97 м²
3. Спальная:
6,67 м²
4. Санитарный узел:
1,37 м²
Узнать цену
Имя
Телефон
Калькулятор дома
Выберите материал стен
Блочный
Каркасный
Выберите тип строения
1 этаж
2 этажа
A-frame
Баня
Гараж
Мансардные
Площадь дома м²
Площадь открытых террас м²
Площадь закрытых террас м²
Укажите площадь и тип дома
Ориентировочная стоимость
BYN
у.е.
Свяжитесь с нами:
+375297852003