Калькулятор дома
+375297852003
Главная
Проекты
Наши Работы
Услуги
Комплектация дома
Контакты
TELIMACH
Общая площадь дома:
189,63 м²
Категория:
Мансардный
Количество спален:
4
Узнать цену
План 1-го этажа
ЭКСПЛИКАЦИЯ ПЛАНА:
1. Тамбур:
3,96 м²
2. Коридор:
3,16 м²
3. Кладовая:
1,75 м²
4. Кухня:
9,81 м²
5. Гостиная с обеденной зоной:
31,03 м²
6. Кабинет:
8,31 м²
7. Ванная комната:
2,71 м²
8. Топочная:
7,23 м²
9. Гараж:
20,19 м²
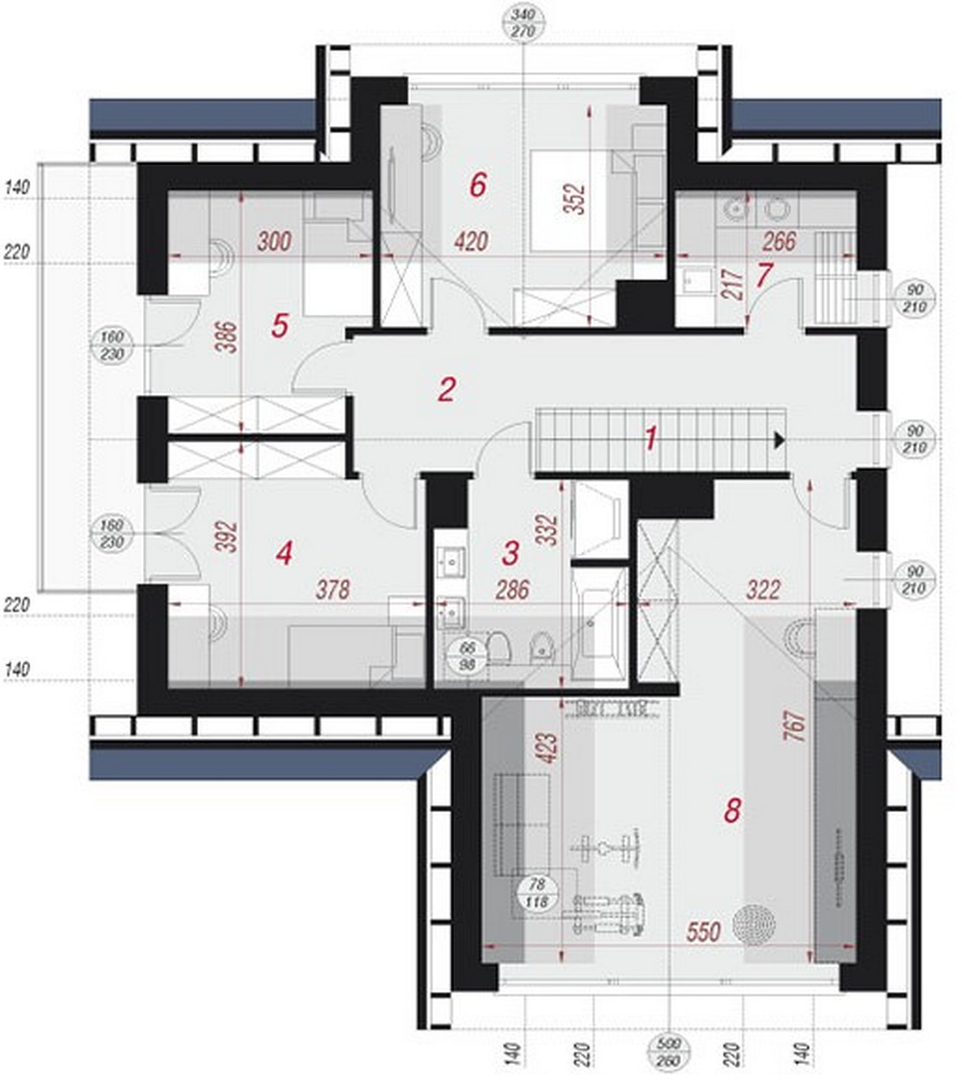
План 2-го этажа
ЭКСПЛИКАЦИЯ ПЛАНА:
1. Лестница:
3,82 м²
2. Коридор:
12,07 м²
3. Ванная комната:
8,72 м²
4. Спальная:
13,8 м²
5. Спальная:
10,63 м²
6. Спальная:
13,92 м²
7. Прачечная:
5,58 м²
8. Тренажёрный зал:
32,94 м²
Узнать цену
Имя
Телефон
Калькулятор дома
Выберите материал стен
Блочный
Каркасный
Выберите тип строения
1 этаж
2 этажа
A-frame
Баня
Гараж
Мансардные
Площадь дома м²
Площадь открытых террас м²
Площадь закрытых террас м²
Укажите площадь и тип дома
Ориентировочная стоимость
BYN
у.е.
Свяжитесь с нами:
+375297852003