Калькулятор дома
+375297852003
Главная
Проекты
Наши Работы
Услуги
Комплектация дома
Контакты
KASIA
Общая площадь дома:
107,45 м²
Категория:
Мансардный
Количество спален:
4
Узнать цену
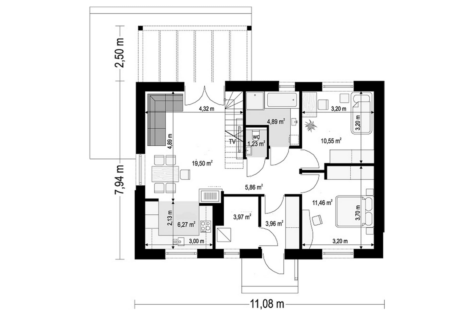
План 1-го этажа
ЭКСПЛИКАЦИЯ ПЛАНА:
1. Тамбур:
3,96 м²
2. Котельная:
3,97 м²
3. Коридор:
5,86 м²
4. Ванная:
4,89 м²
5. Санитарный узел:
1,23 м²
6. Кухня:
6,27 м²
7. Гостиная с обеденной зоной:
19,5 м²
8. Спальная:
10,55 м²
9. Спальная:
11,46 м²
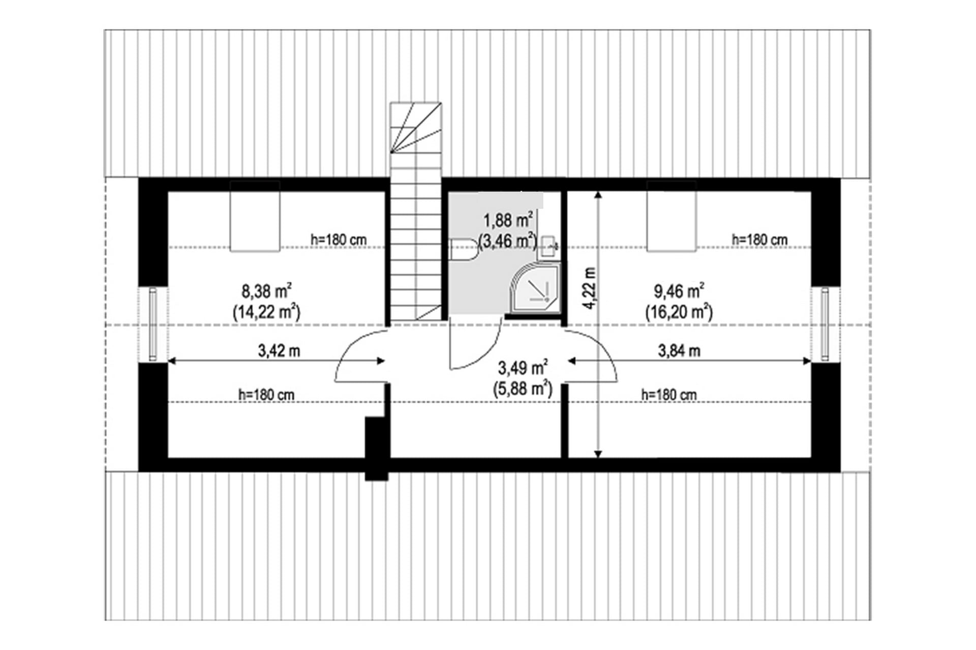
План 2-го этажа
ЭКСПЛИКАЦИЯ ПЛАНА:
1. Коридор:
5,88 м²
2. Совмещённый санитарный узел:
3,46 м²
3. Спальная:
14,22 м²
4. Спальная:
16,2 м²
Узнать цену
Имя
Телефон
Калькулятор дома
Выберите материал стен
Блочный
Каркасный
Выберите тип строения
1 этаж
2 этажа
A-frame
Баня
Гараж
Мансардные
Площадь дома м²
Площадь открытых террас м²
Площадь закрытых террас м²
Укажите площадь и тип дома
Ориентировочная стоимость
BYN
у.е.
Свяжитесь с нами:
+375297852003