Калькулятор дома
+375297852003
Главная
Проекты
Наши Работы
Услуги
Комплектация дома
Контакты
GRAN
Общая площадь дома:
39,04 м²
Категория:
Мансардный
Количество спален:
2
Узнать цену
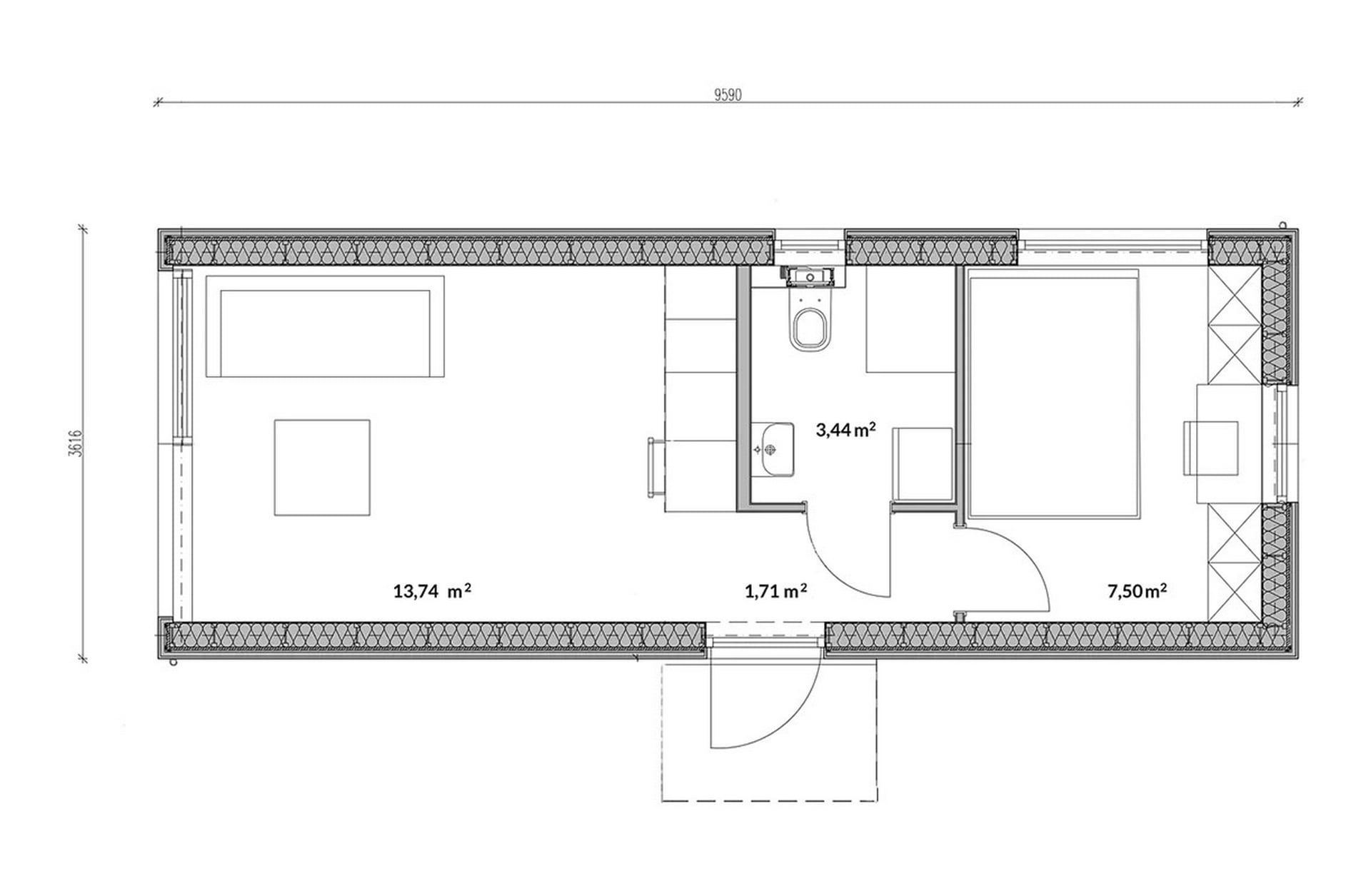
План первого этажа
ЭКСПЛИКАЦИЯ ПЛАНА:
1. Тамбур:
1,71 м²
2. Кухня, гостинная с обеденной зоной:
13,74 м²
3. Санитарный узел:
3,44 м²
4. Спальная:
7,5 м²
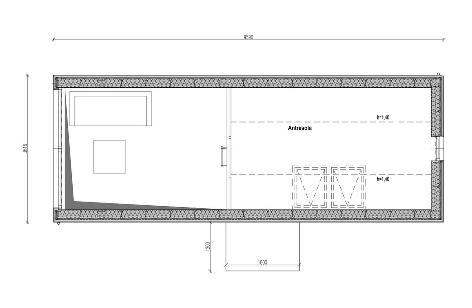
План мансардного этажа
ЭКСПЛИКАЦИЯ ПЛАНА:
1. Мансарда:
12,65 м²
Узнать цену
Имя
Телефон
Калькулятор дома
Выберите материал стен
Блочный
Каркасный
Выберите тип строения
1 этаж
2 этажа
A-frame
Баня
Гараж
Мансардные
Площадь дома м²
Площадь открытых террас м²
Площадь закрытых террас м²
Укажите площадь и тип дома
Ориентировочная стоимость
BYN
у.е.
Свяжитесь с нами:
+375297852003