Калькулятор дома
+375297852003
Главная
Проекты
Наши Работы
Услуги
Комплектация дома
Контакты
BARNHOUSE 75
Общая площадь дома:
76,3 м²
Категория:
Мансардный
Количество спален:
3
Узнать цену
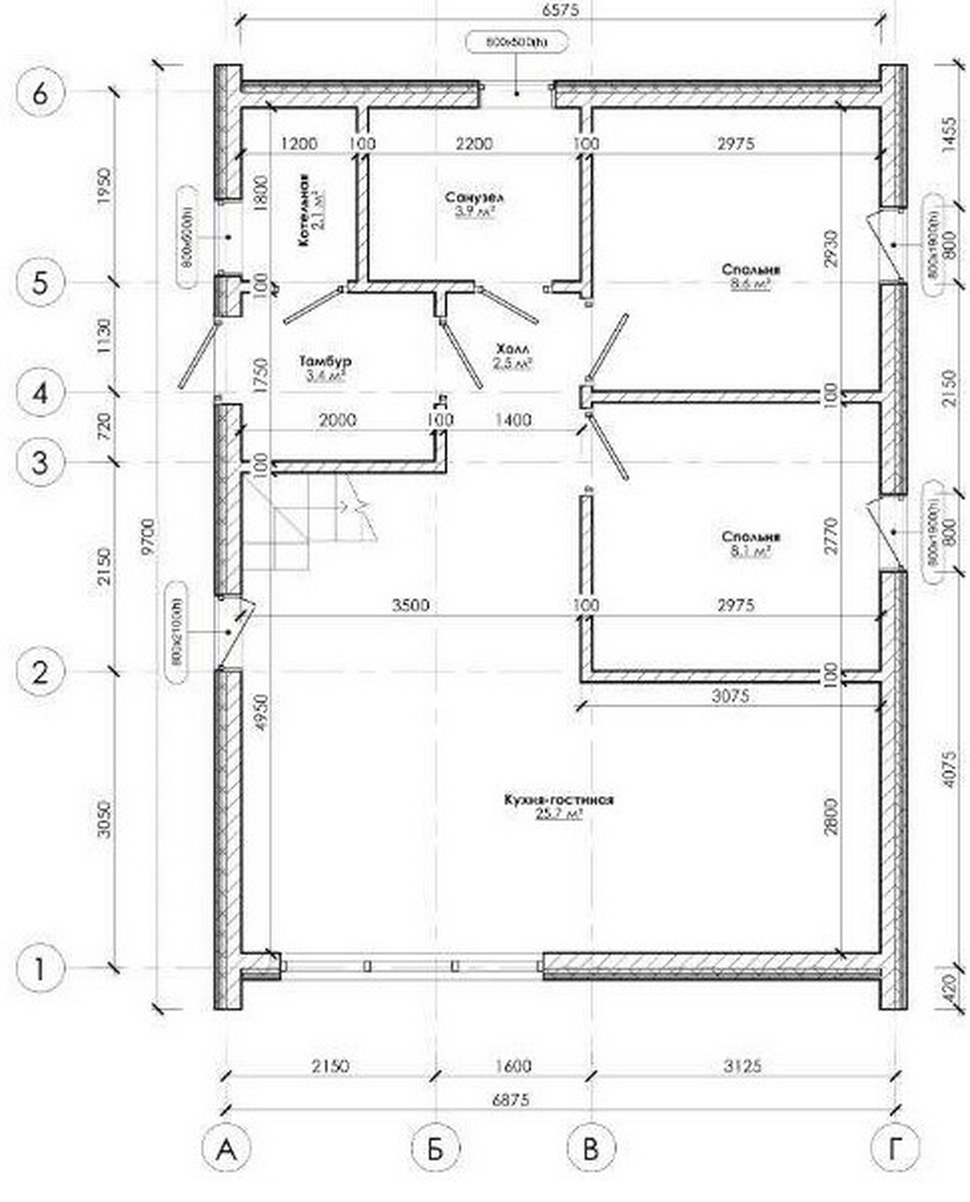
План первого этажа
ЭКСПЛИКАЦИЯ ПЛАНА:
1. Тамбур:
3,4 м²
2. Котельная:
2,1 м²
3. Совмещённый санитарный узел:
3,9 м²
4. Холл:
2,5 м²
5. Спальная:
8,6 м²
6. Спальная:
8,1 м²
7. Кухня, гостинная с обеденной зоной:
25,7 м²
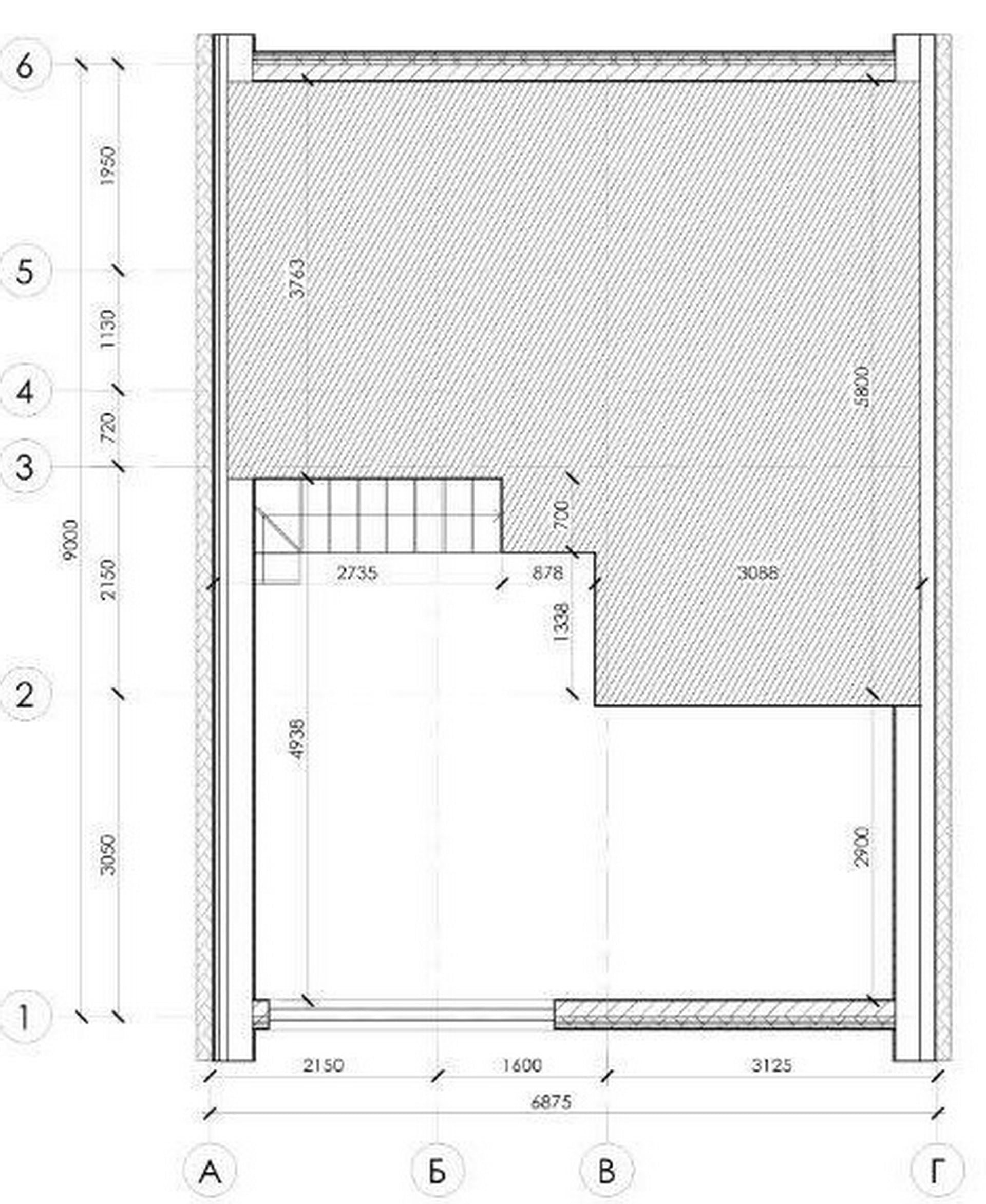
План мансардного этажа
ЭКСПЛИКАЦИЯ ПЛАНА:
8. Спальная:
22,0 м²
Узнать цену
Имя
Телефон
Калькулятор дома
Выберите материал стен
Блочный
Каркасный
Выберите тип строения
1 этаж
2 этажа
A-frame
Баня
Гараж
Мансардные
Площадь дома м²
Площадь открытых террас м²
Площадь закрытых террас м²
Укажите площадь и тип дома
Ориентировочная стоимость
BYN
у.е.
Свяжитесь с нами:
+375297852003