Калькулятор дома +375297852003 phone Viber Telegram

ZX46

Общая площадь дома: 141,9 м²
Категория: 2-этажный
Количество спален: 3
Узнать цену

План 1-го этажа

План 1-го этажа
ЭКСПЛИКАЦИЯ ПЛАНА:
1. Тамбур: 3,3 м²
2. Котельная: 5,4 м²
3. Коридор: 11,0 м²
4. Санитрный узел: 3,0 м²
5. Гардеробная: 4,3 м²
6. Гостиная с обеденной зоной: 22,6 м²
7. Кухня: 10,5 м²
8. Гараж: 18,8 м²
9. Спальная: 14,8 м²
10. Санитрный узел: 3,6 м²
11. Гардеробная: 3,2 м²
12. Гардеробная: 4,0 м²

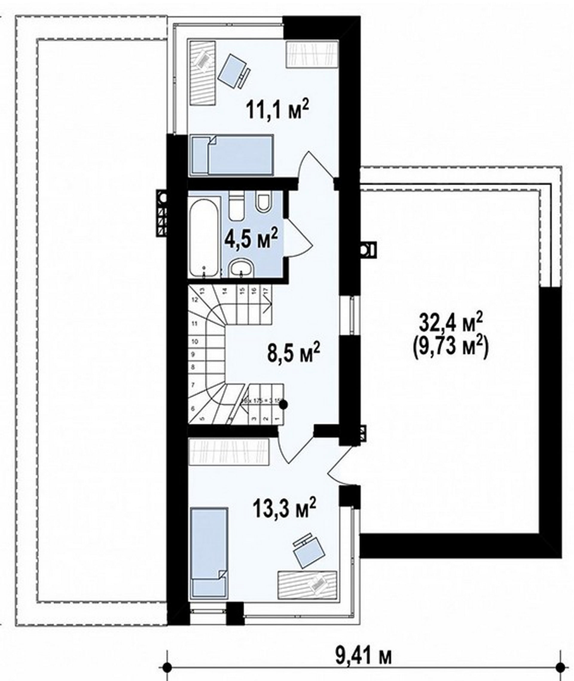
План 2-го этажа

План 2-го этажа
ЭКСПЛИКАЦИЯ ПЛАНА:
1. Коридор: 4,5 м²
2. Спальная: 13,3 м²
3. Спальная: 11,1 м²