Калькулятор дома
+375297852003
Главная
Проекты
Наши Работы
Услуги
Комплектация дома
Контакты
Z543
Общая площадь дома:
40,9 м²
Категория:
2-этажный
Количество спален:
1
Узнать цену
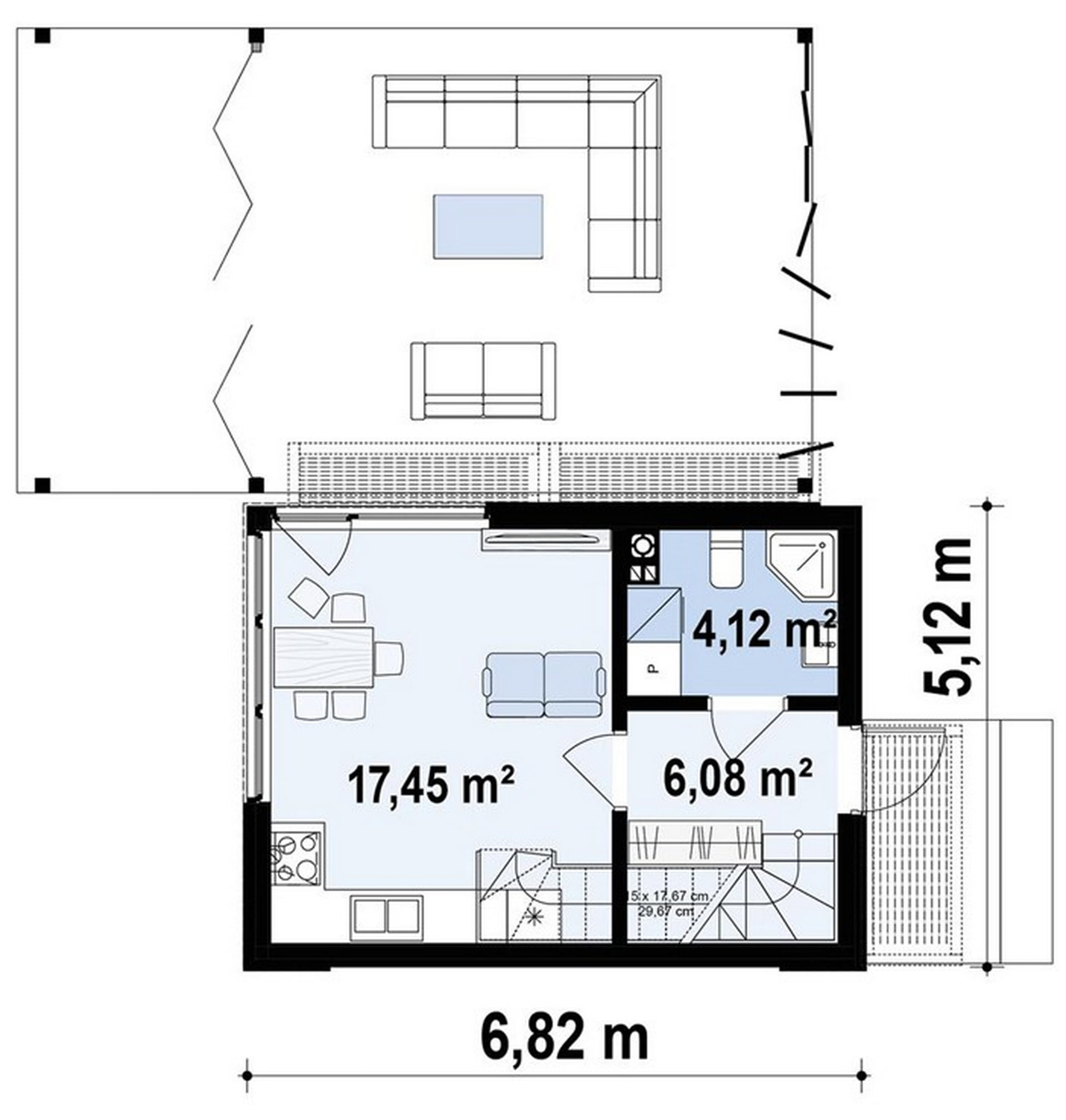
План первого этажа
ЭКСПЛИКАЦИЯ ПЛАНА:
1. Тамбур:
6,0 м²
2. Санитрный узел:
4,12 м²
3. Гостиная, кухня с обеденной зоной:
17,45 м²
План второго этажа
ЭКСПЛИКАЦИЯ ПЛАНА:
1. Спальная:
13,3 м²
Узнать цену
Имя
Телефон
Калькулятор дома
Выберите материал стен
Блочный
Каркасный
Выберите тип строения
1 этаж
2 этажа
A-frame
Баня
Гараж
Мансардные
Площадь дома м²
Площадь открытых террас м²
Площадь закрытых террас м²
Укажите площадь и тип дома
Ориентировочная стоимость
BYN
у.е.
Свяжитесь с нами:
+375297852003