Калькулятор дома
+375297852003
Главная
Проекты
Наши Работы
Услуги
Комплектация дома
Контакты
Z489
Общая площадь дома:
95,1 м²
Категория:
2-этажный
Количество спален:
3
Узнать цену
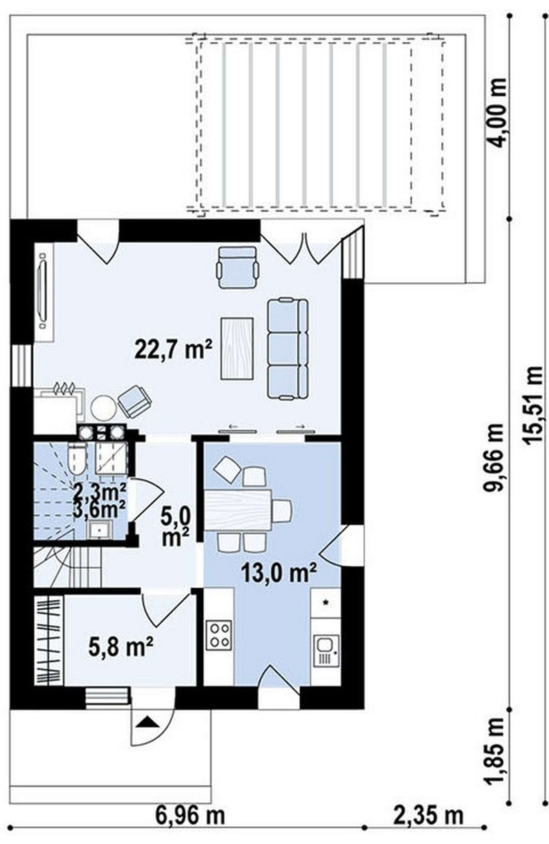
План первого этажа
ЭКСПЛИКАЦИЯ ПЛАНА:
1. Тамбур:
5,8 м²
2. Коридор:
5,0 м²
3. Санитарный узел:
3,6 м²
4. Кухня с обеденной зоной:
13,0 м²
5. Гостиная:
22,7 м²
План второго этажа
ЭКСПЛИКАЦИЯ ПЛАНА:
1. Коридор:
4,3 м²
2. Совмещённый санитарный узел:
7,2 м²
3. Спальная:
11,3 м²
4. Спальная:
11,0 м²
5. Спальная:
11,2 м²
Узнать цену
Имя
Телефон
Калькулятор дома
Выберите материал стен
Блочный
Каркасный
Выберите тип строения
1 этаж
2 этажа
A-frame
Баня
Гараж
Мансардные
Площадь дома м²
Площадь открытых террас м²
Площадь закрытых террас м²
Укажите площадь и тип дома
Ориентировочная стоимость
BYN
у.е.
Свяжитесь с нами:
+375297852003