Калькулятор дома
+375297852003
Главная
Проекты
Наши Работы
Услуги
Комплектация дома
Контакты
MONIKA I
Общая площадь дома:
82,11 м²
Категория:
2-этажный
Количество спален:
2
Узнать цену
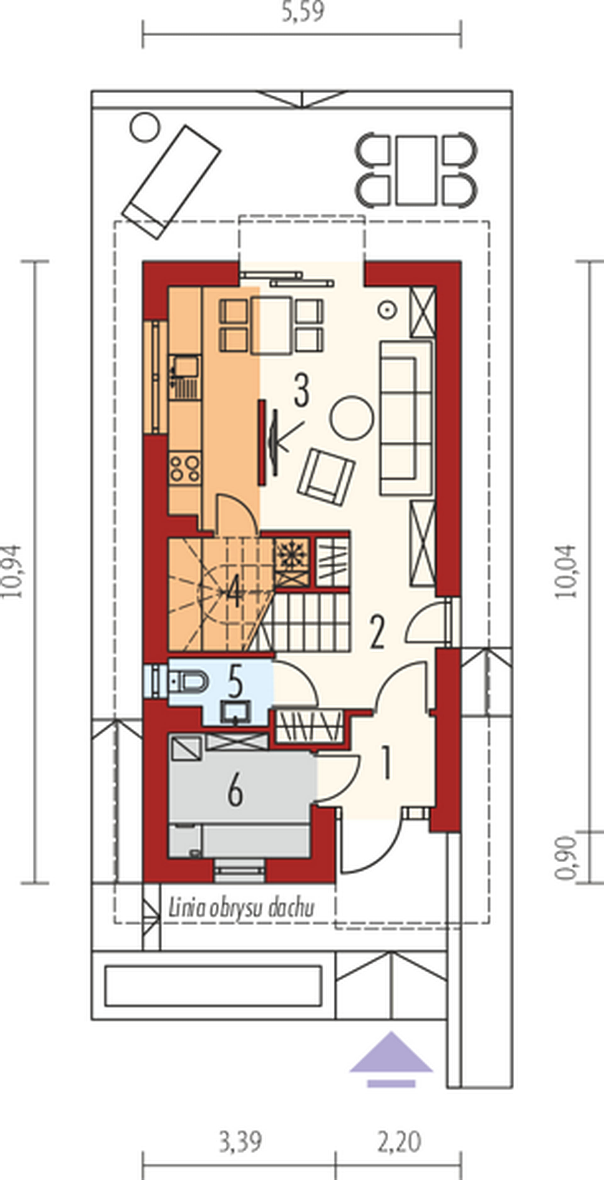
План первого этажа
ЭКСПЛИКАЦИЯ ПЛАНА:
1. Тамбур:
2,89 м²
2. Коридор:
10,2 м²
3. Кухня-гостиная с обеденной зоной:
19,88 м²
4. Лестница:
2,35 м²
5. Санитарный узел:
1,84 м²
6. Котельная:
5,19 м²
План второго этажа
ЭКСПЛИКАЦИЯ ПЛАНА:
1. Коридор:
6,68 м²
2. Спальная:
16,15 м²
3. Спальная:
11,51 м²
4. Совмещённый санитарный узел:
5,42 м²
Узнать цену
Имя
Телефон
Калькулятор дома
Выберите материал стен
Блочный
Каркасный
Выберите тип строения
1 этаж
2 этажа
A-frame
Баня
Гараж
Мансардные
Площадь дома м²
Площадь открытых террас м²
Площадь закрытых террас м²
Укажите площадь и тип дома
Ориентировочная стоимость
BYN
у.е.
Свяжитесь с нами:
+375297852003