Калькулятор дома
+375297852003
Главная
Проекты
Наши Работы
Услуги
Комплектация дома
Контакты
ZX211
Общая площадь дома:
101,6 м²
Категория:
1-этажный
Количество спален:
3
Узнать цену
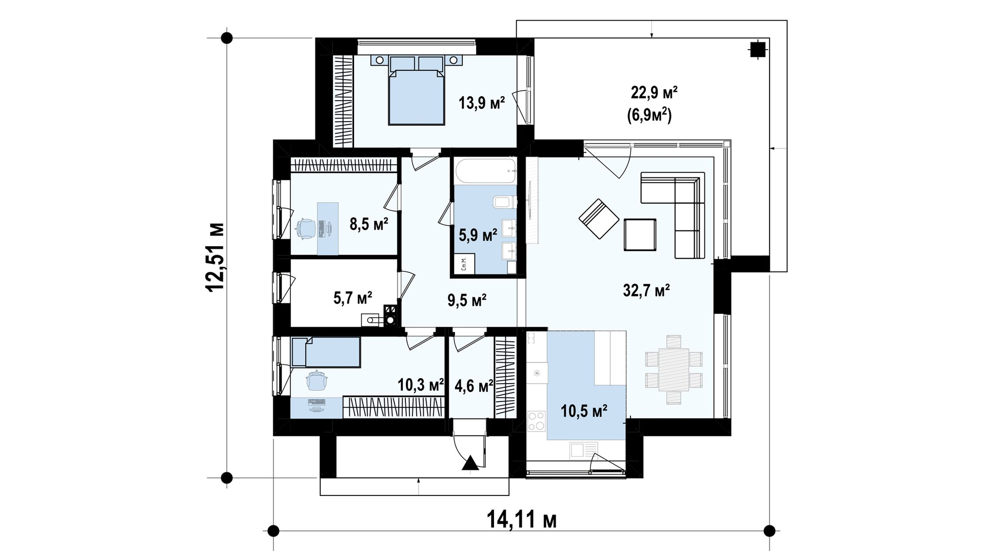
План 1-го этажа
ЭКСПЛИКАЦИЯ ПЛАНА:
1. Тамбур:
4,6 м²
2. Коридор:
9,5 м²
3. Гостиная с обеденной зоной:
32,7 м²
4. Кухня:
10,5 м²
5. Кабинет:
8,5 м²
6. Спальная:
10,3 м²
7. Спальная:
13,9 м²
8. Ванная комната:
5,9 м²
9. Котельная:
5,7 м²
Узнать цену
Имя
Телефон
Калькулятор дома
Выберите материал стен
Блочный
Каркасный
Выберите тип строения
1 этаж
2 этажа
A-frame
Баня
Гараж
Мансардные
Площадь дома м²
Площадь открытых террас м²
Площадь закрытых террас м²
Укажите площадь и тип дома
Ориентировочная стоимость
BYN
у.е.
Свяжитесь с нами:
+375297852003