Калькулятор дома
+375297852003
Главная
Проекты
Наши Работы
Услуги
Комплектация дома
Контакты
VISTA А
Общая площадь дома:
75,7 м²
Категория:
1-этажный
Количество спален:
2
Узнать цену
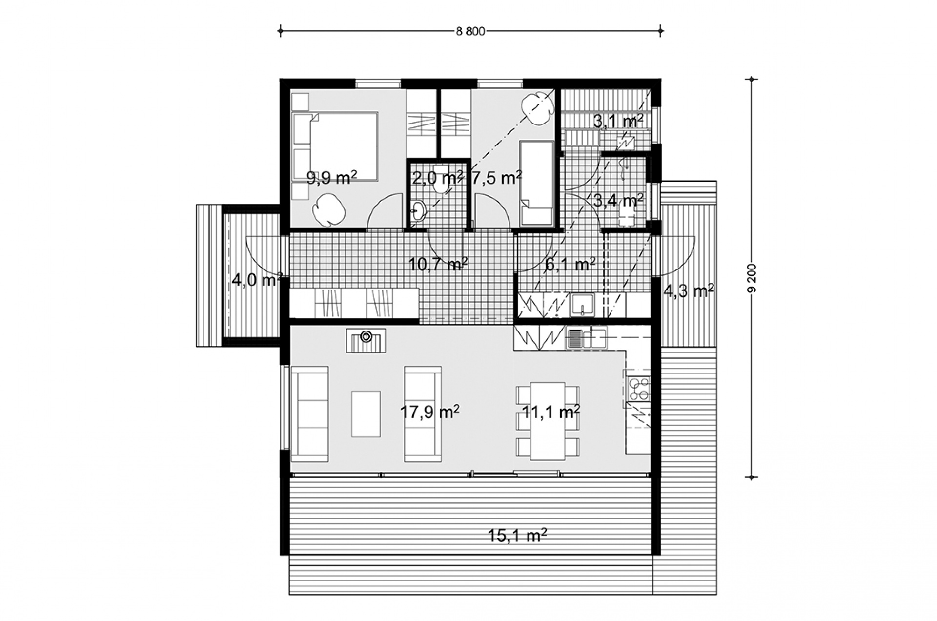
План первого этажа
ЭКСПЛИКАЦИЯ ПЛАНА:
1. Крыльцо:
4,0 м²
2. Тамбур-коридор:
10,7 м²
3. Гостиная:
17,9 м²
4. Кухня с обеденной зоной:
11,1 м²
5. Санитарный узел:
2,0 м²
6. Спальная:
9,9 м²
7. Спальная:
7,5 м²
8. Раздевалка-прачечная:
6,1 м²
9. Душевая:
3,4 м²
10. Сауна:
3,1 м²
Узнать цену
Имя
Телефон
Калькулятор дома
Выберите материал стен
Блочный
Каркасный
Выберите тип строения
1 этаж
2 этажа
A-frame
Баня
Гараж
Мансардные
Площадь дома м²
Площадь открытых террас м²
Площадь закрытых террас м²
Укажите площадь и тип дома
Ориентировочная стоимость
BYN
у.е.
Свяжитесь с нами:
+375297852003