Калькулятор дома
+375297852003
Главная
Проекты
Наши Работы
Услуги
Комплектация дома
Контакты
VISIO С
Общая площадь дома:
62,5 м²
Категория:
1-этажный
Количество спален:
2
Узнать цену
План первого этажа
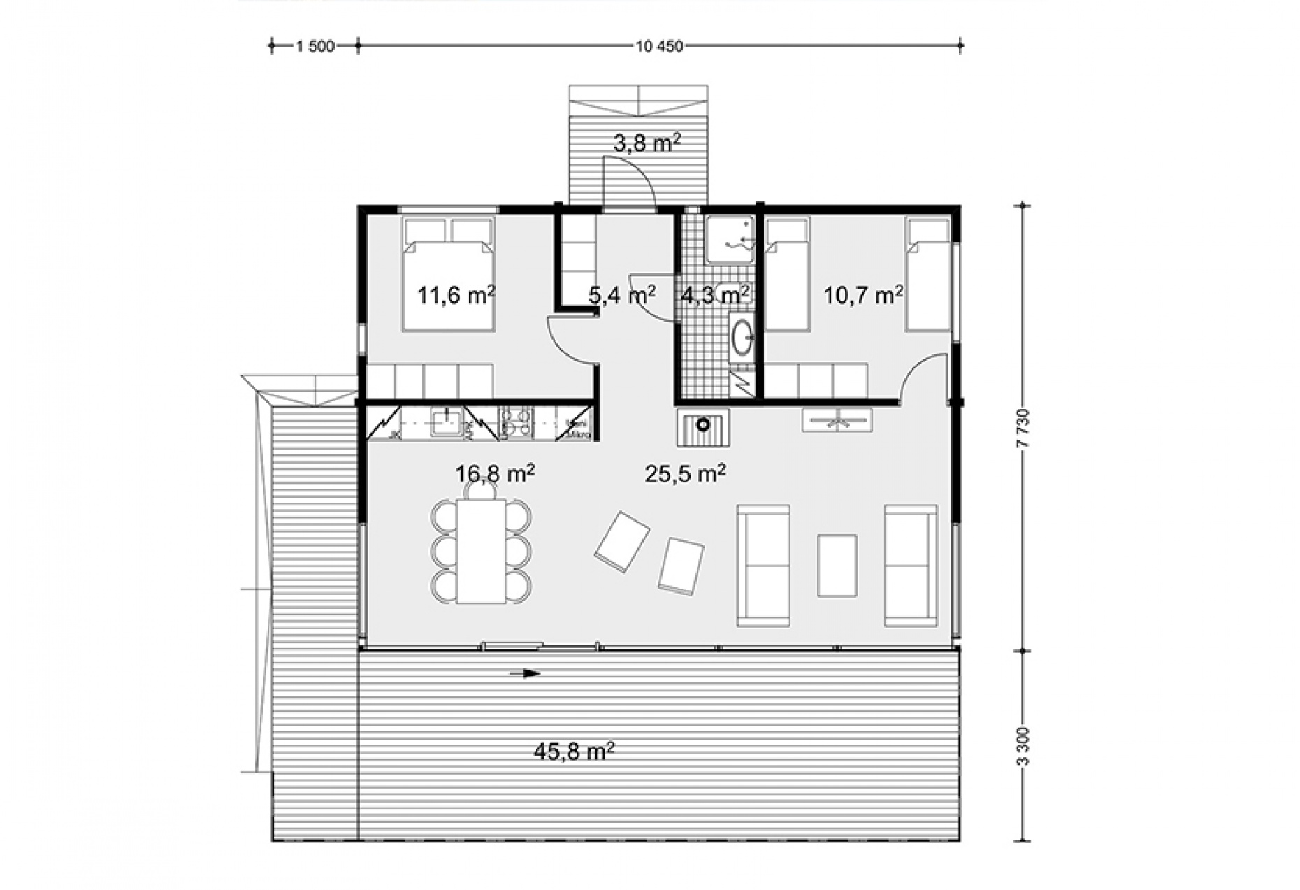
ЭКСПЛИКАЦИЯ ПЛАНА:
1. Тамбур:
5,5 м²
2. Кухня с обеденной зоной:
19,2 м²
3. Гостиная:
16,2 м²
4. Спальная:
10,2 м²
5. Спальная:
7,2 м²
6. Санитарный узел:
4,2 м²
Узнать цену
Имя
Телефон
Калькулятор дома
Выберите материал стен
Блочный
Каркасный
Выберите тип строения
1 этаж
2 этажа
A-frame
Баня
Гараж
Мансардные
Площадь дома м²
Площадь открытых террас м²
Площадь закрытых террас м²
Укажите площадь и тип дома
Ориентировочная стоимость
BYN
у.е.
Свяжитесь с нами:
+375297852003