Калькулятор дома
+375297852003
Главная
Проекты
Наши Работы
Услуги
Комплектация дома
Контакты
TUULI D
Общая площадь дома:
88,0 м²
Категория:
1-этажный
Количество спален:
3
Узнать цену
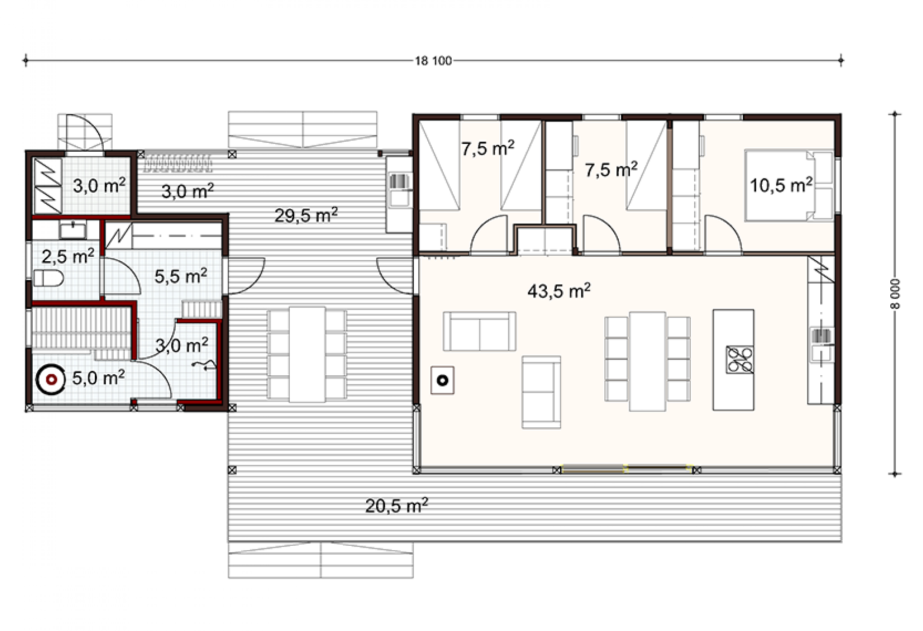
План первого этажа
ЭКСПЛИКАЦИЯ ПЛАНА:
1. Кухня-гостиная с обеденной зоной:
43,5 м²
2. Спальная:
10,5 м²
3. Спальная:
7,5 м²
4. Спальная:
7,5 м²
5. Раздевалка:
5,5 м²
6. Душевая:
3,0 м²
7. Санитарный узел:
2,5 м²
8. Сауна:
5,0 м²
9. Подсобое помещение:
3,0 м²
Узнать цену
Имя
Телефон
Калькулятор дома
Выберите материал стен
Блочный
Каркасный
Выберите тип строения
1 этаж
2 этажа
A-frame
Баня
Гараж
Мансардные
Площадь дома м²
Площадь открытых террас м²
Площадь закрытых террас м²
Укажите площадь и тип дома
Ориентировочная стоимость
BYN
у.е.
Свяжитесь с нами:
+375297852003