Калькулятор дома +375297852003 phone Viber Telegram

TIPTOP

Общая площадь дома: 116,9 м²
Категория: 1-этажный
Количество спален: 3
Узнать цену

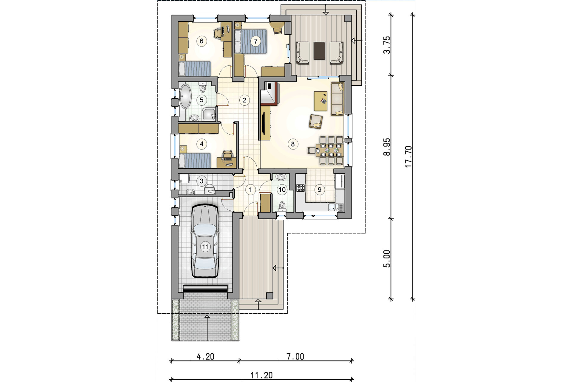
План 1-го этажа

План 1-го этажа
ЭКСПЛИКАЦИЯ ПЛАНА:
1. Тамбур: 5,40 м²
2. Коридор: 9,75 м²
3. Котельная: 4,30 м²
4. Спальная: 10,05 м²
5. Ванная: 5,65 м²
6. Спальная: 11,60 м²
7. Спальная: 10,85 м²
8. Гостиная с обеденной зоной: 28,35 м²
9. Кухня: 7,90 м²
10. Санитарный узел: 3,00 м²
11. Гараж: 20,05 м²