Калькулятор дома
+375297852003
Главная
Проекты
Наши Работы
Услуги
Комплектация дома
Контакты
SAAGA B
Общая площадь дома:
70,5 м²
Категория:
1-этажный
Количество спален:
2
Узнать цену
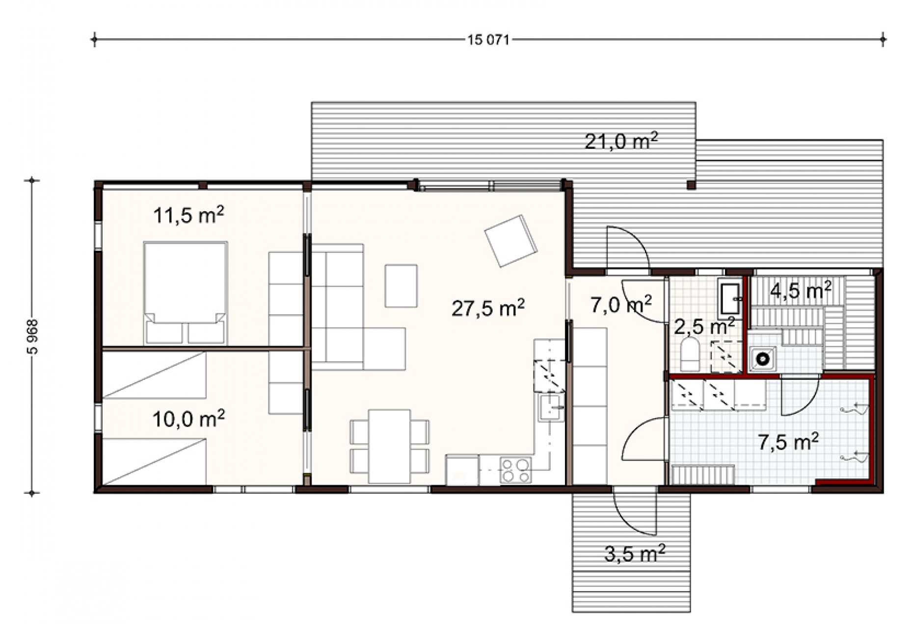
План первого этажа
ЭКСПЛИКАЦИЯ ПЛАНА:
1. Тамбур:
3,5 м²
2. Помывочная:
7,5 м²
3. Cанитарный узел:
2,5 м²
3. Сауна:
4,5 м²
4. Кухня-гостиная-столовая:
27,5 м²
5. Спальная:
11,5 м²
6. Спальная:
10,0 м²
Узнать цену
Имя
Телефон
Калькулятор дома
Выберите материал стен
Блочный
Каркасный
Выберите тип строения
1 этаж
2 этажа
A-frame
Баня
Гараж
Мансардные
Площадь дома м²
Площадь открытых террас м²
Площадь закрытых террас м²
Укажите площадь и тип дома
Ориентировочная стоимость
BYN
у.е.
Свяжитесь с нами:
+375297852003