Калькулятор дома +375297852003 phone Viber Telegram

MAMBO TWO

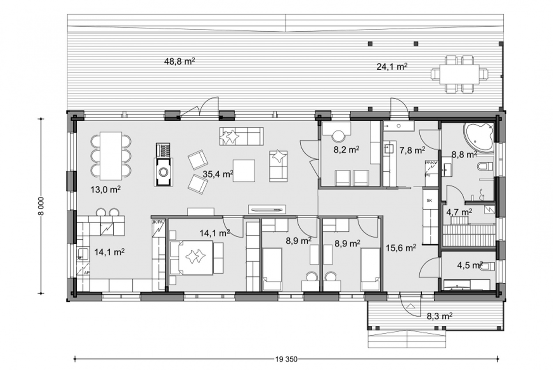
Общая площадь дома: 144,0 м²
Категория: 1-этажный
Количество спален: 3
Узнать цену

План 1-го этажа

План 1-го этажа
ЭКСПЛИКАЦИЯ ПЛАНА:
1. Тамбур: 15,6 м²
2. Санитарный узел: 3,4 м²
3. Гостинная: 35,4 м²
4. Cтоловая: 13,0 м²
5. Кухня: 14,1 м²
6. Спальная: 14,1 м²
7. Спальная: 8,9 м²
8. Спальная: 8,9 м²
9. Кабинет: 8,2 м²
10. Раздевалка-постирочная: 7,8 м²
11. Помывочная: 8,8 м²
12. Сауна: 4,7 м²