Калькулятор дома +375297852003 phone Viber Telegram

EASY ONE

Общая площадь дома: 105,4 м²
Категория: 1-этажный
Количество спален: 3
Узнать цену

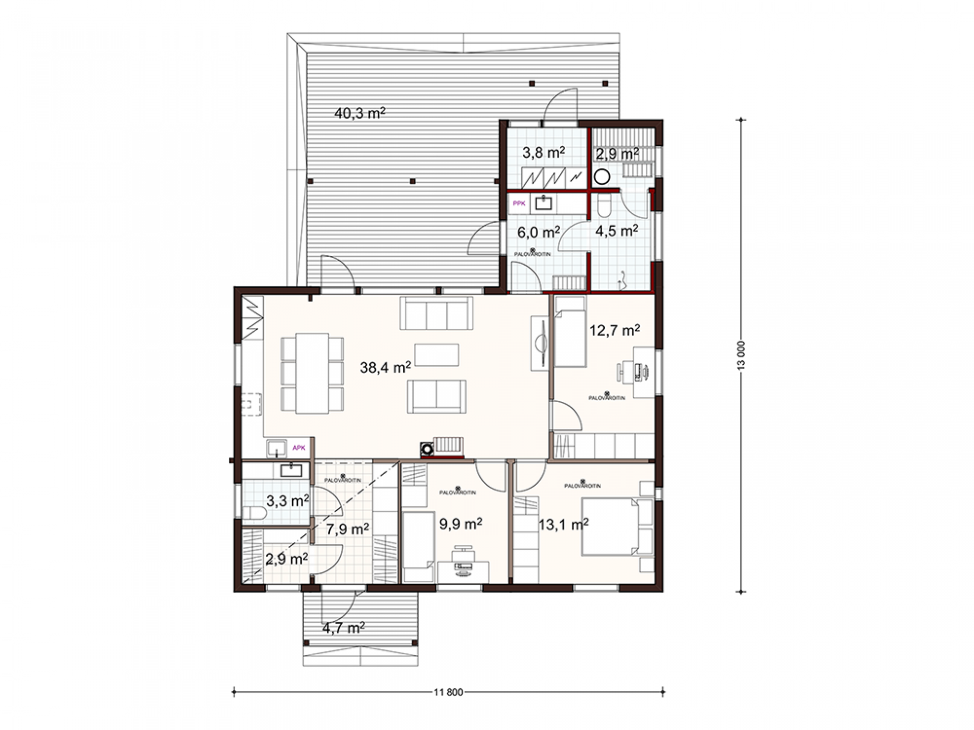
План 1-го этажа

План 1-го этажа
ЭКСПЛИКАЦИЯ ПЛАНА:
1. Тамбур: 7,9 м²
2. Гардеробная: 2,9 м²
3. Санитарный узел: 3,3 м²
4. Кухня-гостинная-столовая: 38,4 м²
5. Спальная: 9,9 м²
6. Спальная: 13,1 м²
7. Спальная: 12,7 м²
8. Котельная: 3,8 м²
9. Помывочная: 4,5 м²
10. Сауна: 2,9 м²
11. Раздевалка-постирочная: 6,0 м²