Калькулятор дома +375297852003 phone Viber Telegram

144 v1

Общая площадь дома: 194,63 м²
Категория: Мансардный
Количество спален: 3
Узнать цену

План 1-го этажа

План 1-го этажа
ЭКСПЛИКАЦИЯ ПЛАНА:
1. Тамбур: 6,36 м²
2. Коридор: 7,95 м²
3. Гостиная-столовая: 31,66 м²
4. Кухня: 11,67м²
5. Кладовая: 1,40 м²
6. Прачечная-котельная: 7,15 м ²
7. Санитарный узел: 7,88 м²
8. Спальня: 10,47 м²
9. Гардеробная: 2,23 м²
10. Спальня: 9,30 м²
11. Спальня: 9,30 м²
12. Санитарный узел: 4,27 м²
W. Подсобное помещение: 9,42 м²
T. Крытая терраса: 25,34 м²

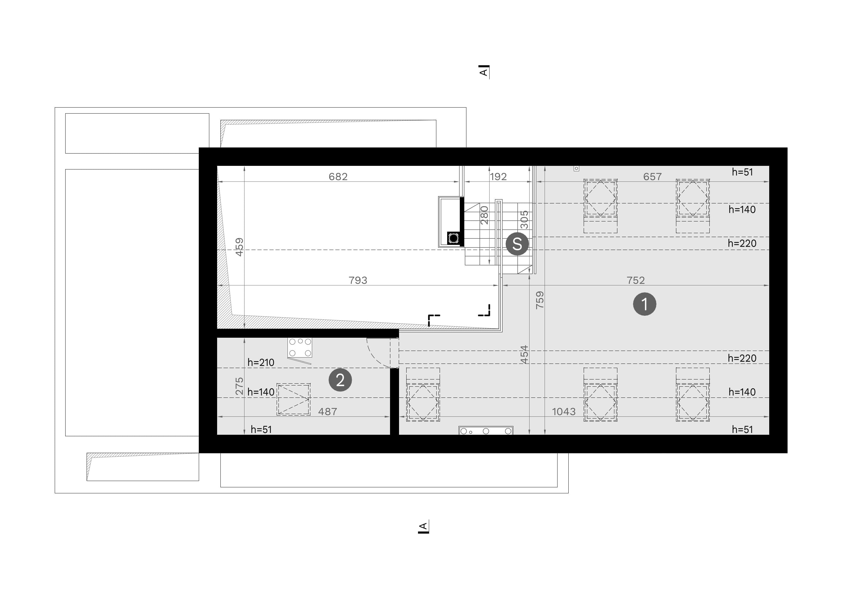
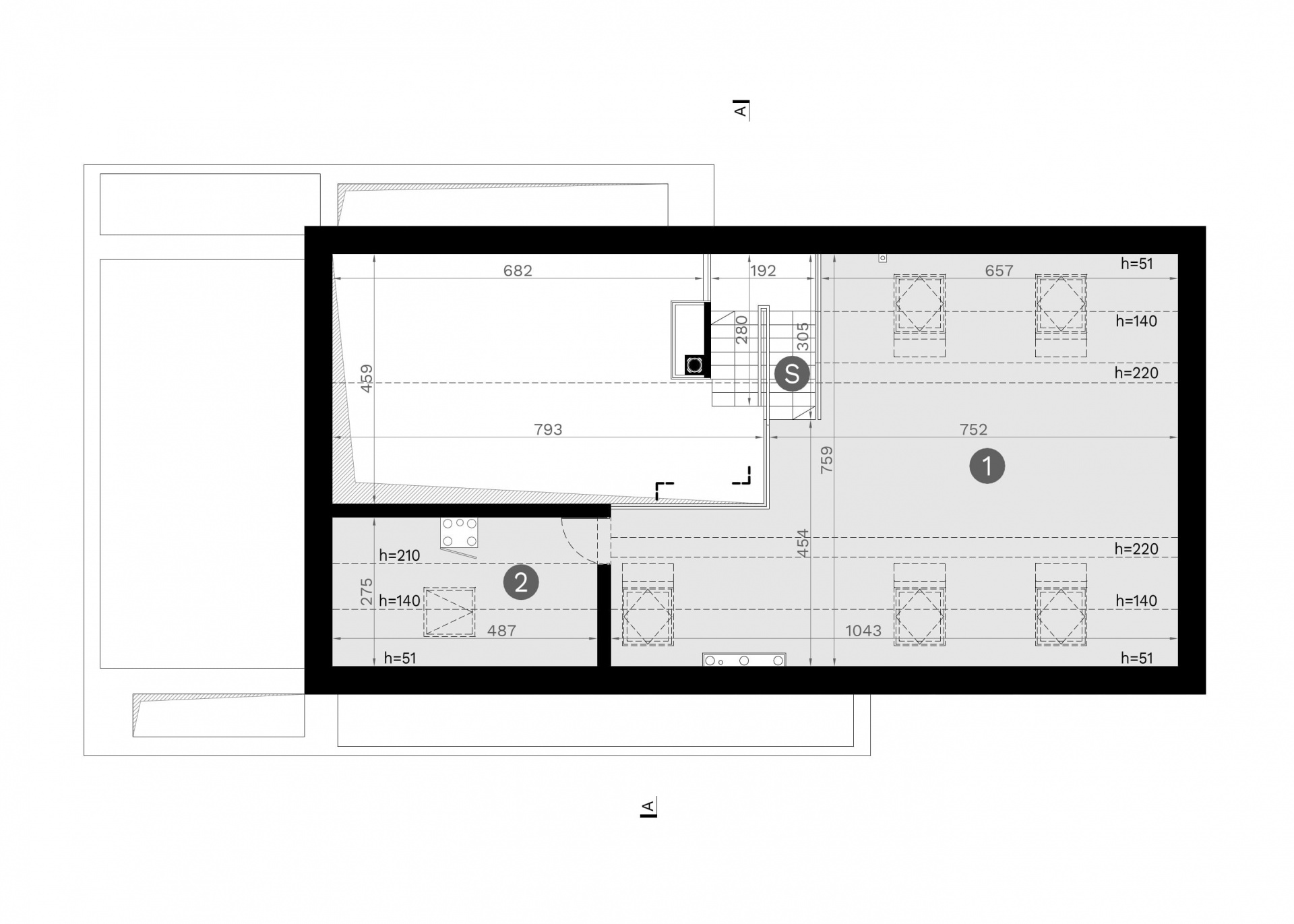
План 2-го этажа

План 2-го этажа
ЭКСПЛИКАЦИЯ ПЛАНА:
1. Чердак: 36,54 м ² ( 62,20) м²
2. Санитарный узел: 4,11 м ² ( 13,37) м²
S. Лестница: 5,60 м²
Крыльца/террасы: 50,0 м²