Калькулятор дома
+375297852003
Главная
Проекты
Наши Работы
Услуги
Комплектация дома
Контакты
Steam
Общая площадь дома:
40,15 м²
Категория:
Баня
Количество спален:
1
Узнать цену
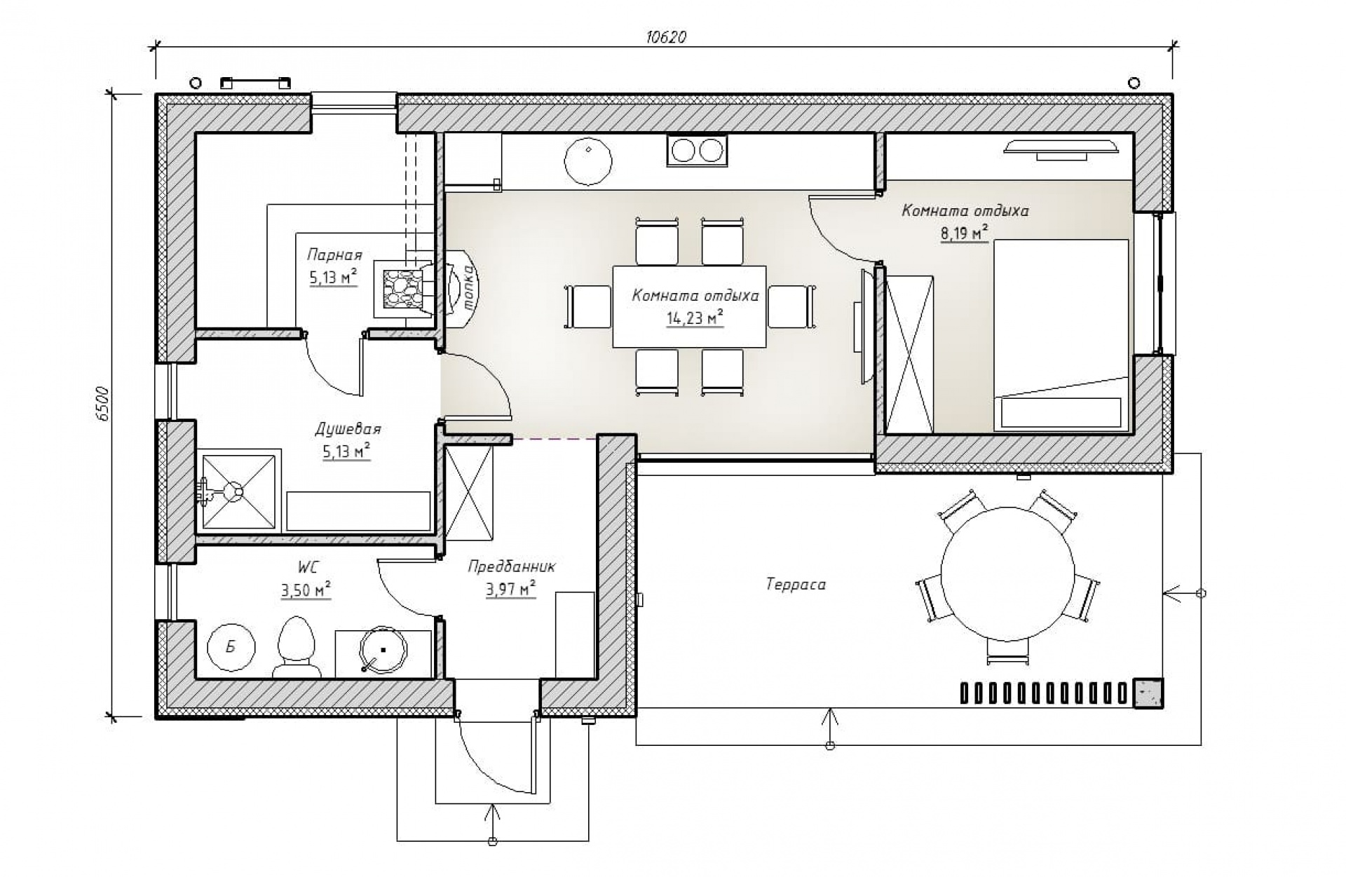
План 1-го этажа
ЭКСПЛИКАЦИЯ ПЛАНА:
1. Предбанник:
3,97 м²
2. Санитарный узел:
3,5 м²
3. Душевая:
5,13 м²
4. Парная:
5,13 м²
5. Комната отдыха:
14,23 м²
5. Спальня:
8,19 м²
Площадь крыльца/террасы: 17,5 м²
Узнать цену
Имя
Телефон
Калькулятор дома
Выберите материал стен
Блочный
Каркасный
Выберите тип строения
1 этаж
2 этажа
A-frame
Баня
Гараж
Мансардные
Площадь дома м²
Площадь открытых террас м²
Площадь закрытых террас м²
Укажите площадь и тип дома
Ориентировочная стоимость
BYN
у.е.
Свяжитесь с нами:
+375297852003