Калькулятор дома +375297852003 phone Viber Telegram

51

Общая площадь дома: 214,2 м²
Категория: 2-этажный
Количество спален: 4
Узнать цену

План 1-го этажа

План 1-го этажа
ЭКСПЛИКАЦИЯ ПЛАНА:

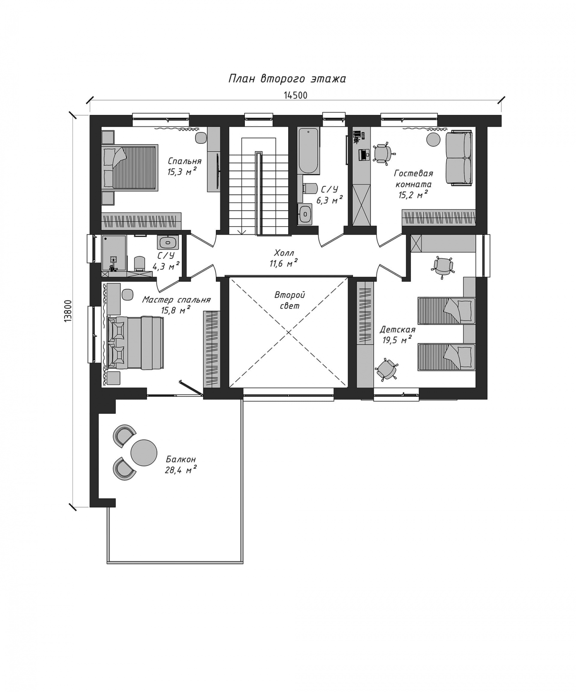
План 2-го этажа

План 2-го этажа
ЭКСПЛИКАЦИЯ ПЛАНА:
1. Прихожая: 7,0 м²
2. Санитарный узел: 7,2 м²
3. Котельная: 10,4 м²
4. Кухня-гостиная: 50,3 м²
5. Кабинет: 12,2 м²
6. Детская: 12,4 м²
7. Детская: 10,4 м²
8. Холл: 13,0 м²
9. Санитарный узел: 5,0 м²
10. Спальная: 10,2 м²
Площадь крыльца/террас/балконов: 63,4 м²