Калькулятор дома +375297852003 phone Viber Telegram

24

Общая площадь дома: 237,6 м²
Категория: 2-этажный
Количество спален: 4
Узнать цену

План 1-го этажа

План 1-го этажа
ЭКСПЛИКАЦИЯ ПЛАНА:
1. Прихожая: 5,7 м²
2. Котельная: 5,8 м²
3. Холл: 5,5 м²
4. Санитарный узел: 4,5 м²
5. Сауна: 2,8 м²
6. Кухня-гостиная: 61,7 м²
7. Спальная: 12,3 м²
8. Коридор: 11,1 м²
9. Спальная: 12,3 м²
10. Санитарный узел: 6,4 м²
11. Спальная: 12,1 м²
12. Кабинет: 12,1 м²
13. Гардеробная: 6,5 м²
Площадь крылец/террас/балконов: 67,5 м²

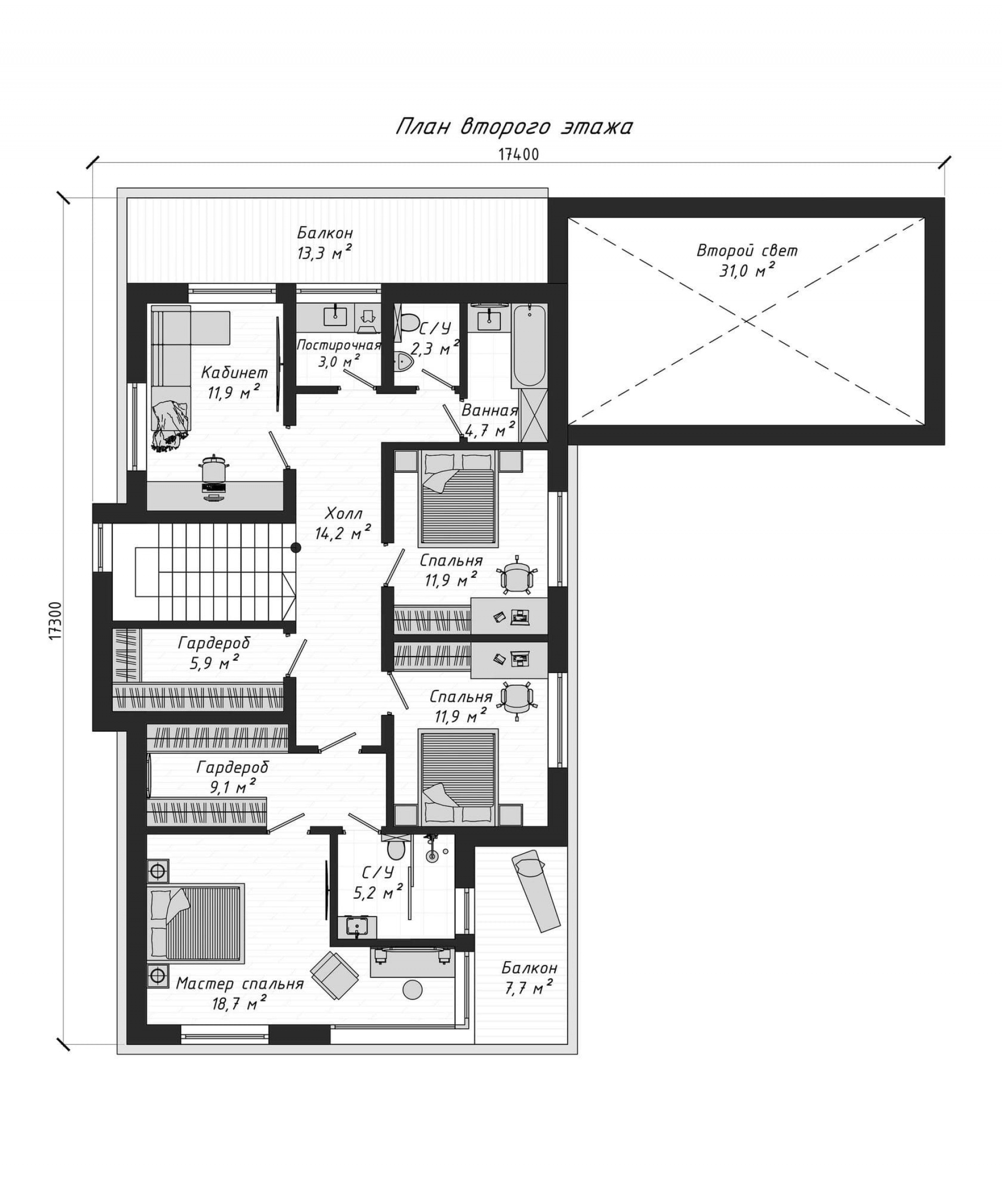
План 2-го этажа

План 2-го этажа
ЭКСПЛИКАЦИЯ ПЛАНА: